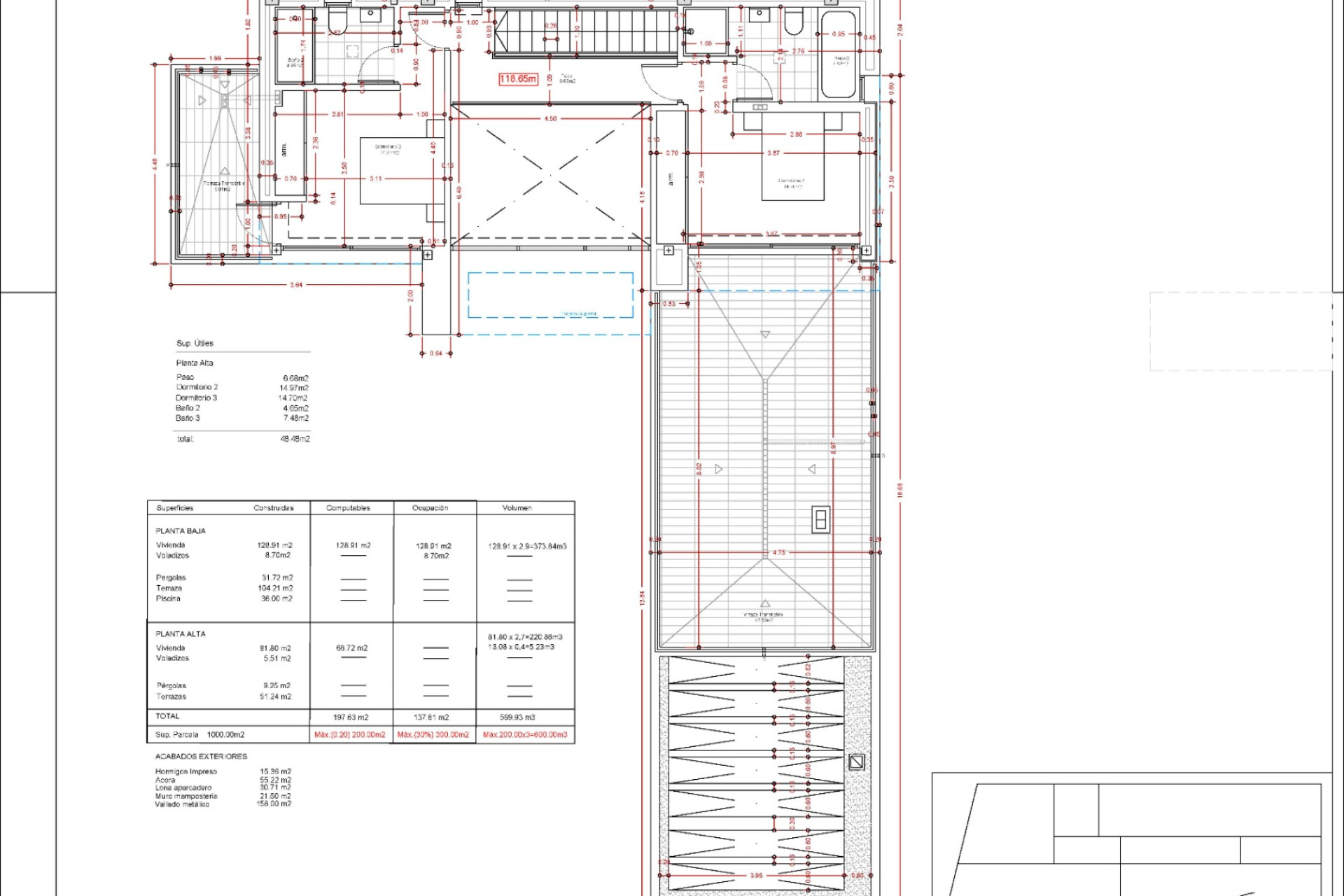
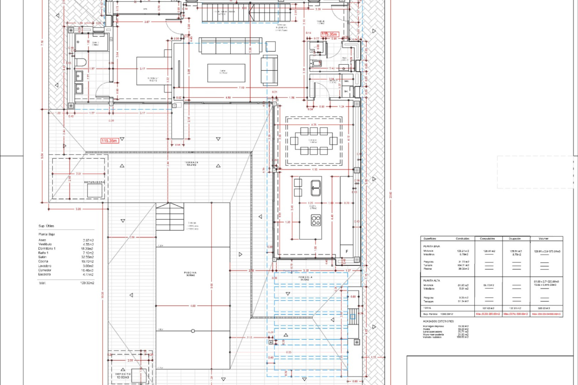
Un Refugio Moderno en Javea/XabiaEnclavada en la prestigiosa zona de Portichol - Balcón al Mar, esta exquisita villa moderna ofrece una experiencia de vida sin igual. Con una construcción de 247 m² que se despliega sobre un amplio terreno de 1032 m², este hogar es un verdadero santuario para quienes buscan luminosidad, confort y estilo en cada rincón. Espacios Bien DistribuidosLa villa cuenta con tres acogedoras habitaciones y tres elegantes baños, diseñados para ofrecer privacidad y serenidad. Su distribución diaphanous permite un flujo natural entre los espacios, fomentando un ambiente relajante y acogedor que se siente inmediatamente al ingresar. Cada habitación está diseñada para maximizar la luz natural, utilizando grandes ventanales que ofrecen vistas encantadoras del entorno. Diseño VanguardistaLa cocina de diseño es un homenaje a la modernidad, equipada con electrodomésticos de alta gama y un estilo contemporáneo que hará las delicias de los amantes de la gastronomía. Al ser un espacio abierto, se conecta de manera fluida con las áreas de estar y comedor, ideales para entretener a familiares y amigos. La calefacción por suelo radiante y la aire acondicionado por conductos aseguran un ambiente siempre agradable. Exteriores para DisfrutarEl exterior es quizás uno de los mayores atractivos de esta propiedad. La piscina de 8 x 4 metros resplandece bajo el sol, rodeada de un jardín perfectamente cuidado que invita a disfrutar del clima mediterráneo. Además, la villa incluye varias terrazas, tanto cubiertas como descubiertas, donde se puede apreciar el atardecer sobre el horizonte. Comodidades ExclusivasEste hogar no solo destaca por su diseño y ubicación. Está equipado con una amplia gama de comodidades, incluyendo: Ubicación PrivilegiadaSituada en Javea/Xabia, una de las localidades más emblemáticas de la Costa Blanca, esta villa ofrece un estilo de vida envidiable. Su cercanía al mar, sumado a la tranquilidad del entorno residencial y a la buena comunicación con las principales vías de acceso, convierte esta propiedad en un lugar ideal tanto para residir todo el año como para disfrutar de escapadas veraniegas. Permítase el lujo de vivir en un hogar que combina el diseño moderno y la perfección natural en un entorno inigualable. Esta villa en Portichol es una invitación a disfrutar de la vida en su máxima expresión.
BoCasa es su agente inmobiliario personal en la Costa Blanca. Nuestra zona de trabajo se centra en la zona entre Denia a Calpe y hacia el interior hasta el valle de Jalon con un enfoque en las ciudades de Moraira, Javea, Benissa y Benitachell. Le ayudamos desde el principio hasta el final con la compra o venta de su propiedad en España. Según sus preferencias, seleccionamos viviendas adecuadas, las visitamos junto con usted, negociamos en su nombre y le guiamos en la contratación de profesionales como abogados, asesores hipotecarios, notarios, etc. También estamos a su disposición después de la compra para arreglar todo tipo de asuntos prácticos que se le presenten, pero también, por ejemplo, para las reformas y el amueblamiento de su casa y/o jardín. No dude en ponerse en contacto con nosotros, sin ningún compromiso.