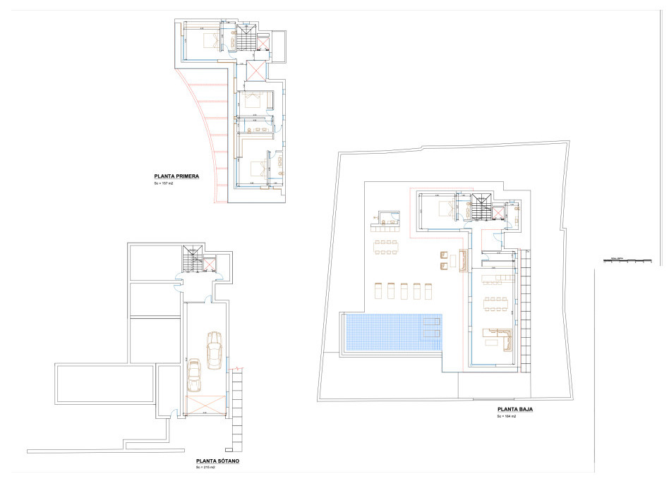
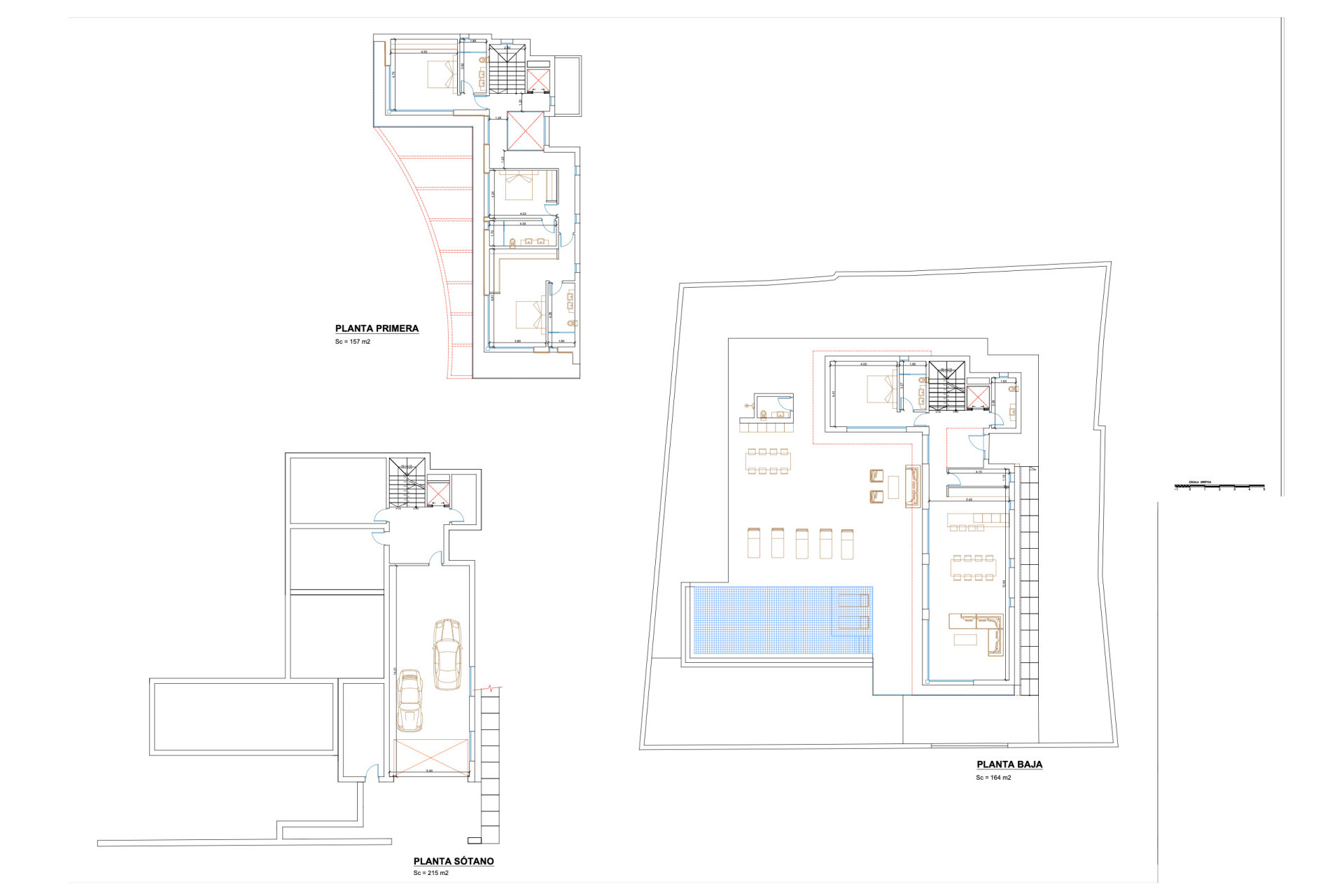
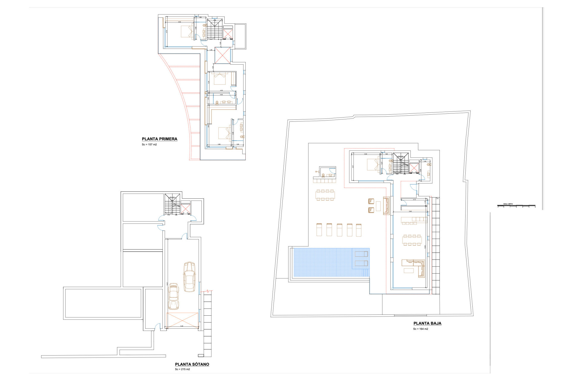
Exclusiva Villa Moderna en Moraira con Impresionantes Vistas al Mar Unique Homes Spain se enorgullece en presentar esta impresionante villa contemporánea en Moraira, que ofrece vistas incomparables al mar y a las montañas. Ubicada en una parcela bellamente situada en una zona tranquila y prestigiosa, esta villa cuenta con vistas excepcionales y disfruta de una orientación perfecta al sur, asegurando luz solar durante todo el día. La propiedad cuenta con tres niveles de lujo. En el nivel inferior, encontrará un amplio garaje con capacidad para 2-3 coches, una sala de lavandería y espacios adicionales versátiles que pueden personalizarse como trasteros, gimnasio en casa o sala de cine. El nivel principal presenta una zona de estar de concepto abierto que conecta de manera fluida el elegante salón, el comedor y la moderna cocina. Esta área se abre a una terraza bañada por el sol y a una zona de piscina con vistas espectaculares al mar. Además, este nivel incluye una lujosa suite principal con baño en suite y un aseo para invitados. El nivel superior consta de tres dormitorios adicionales, cada uno con su propio baño en suite. La suite principal en este nivel ofrece una terraza privada con impresionantes vistas a las montañas y al mar, un vestidor privado y un baño en suite opulento. Entre las características adicionales de esta villa se incluyen calefacción por suelo radiante y aire acondicionado por conductos para mayor comodidad durante todo el año, preinstalación para calefacción y cubierta de piscina, y un avanzado sistema de domótica. La cocina está equipada con electrodomésticos de alta gama de Bosch o equivalente. Experimente la esencia del lujo moderno en esta exquisita villa. Contáctenos en Unique Homes Spain para concertar una visita y hacer realidad la compra de esta casa de ensueño.
BoCasa es su agente inmobiliario personal en la Costa Blanca. Nuestra zona de trabajo se centra en la zona entre Denia a Calpe y hacia el interior hasta el valle de Jalon con un enfoque en las ciudades de Moraira, Javea, Benissa y Benitachell. Le ayudamos desde el principio hasta el final con la compra o venta de su propiedad en España. Según sus preferencias, seleccionamos viviendas adecuadas, las visitamos junto con usted, negociamos en su nombre y le guiamos en la contratación de profesionales como abogados, asesores hipotecarios, notarios, etc. También estamos a su disposición después de la compra para arreglar todo tipo de asuntos prácticos que se le presenten, pero también, por ejemplo, para las reformas y el amueblamiento de su casa y/o jardín. No dude en ponerse en contacto con nosotros, sin ningún compromiso.