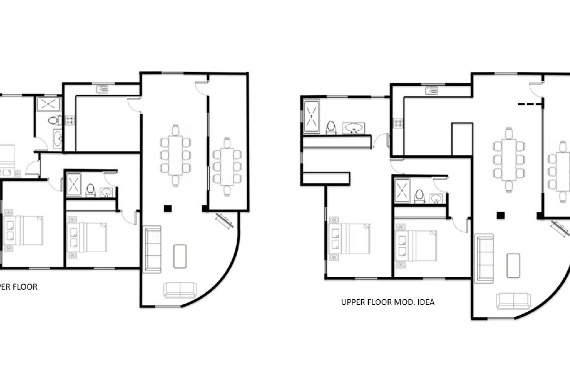
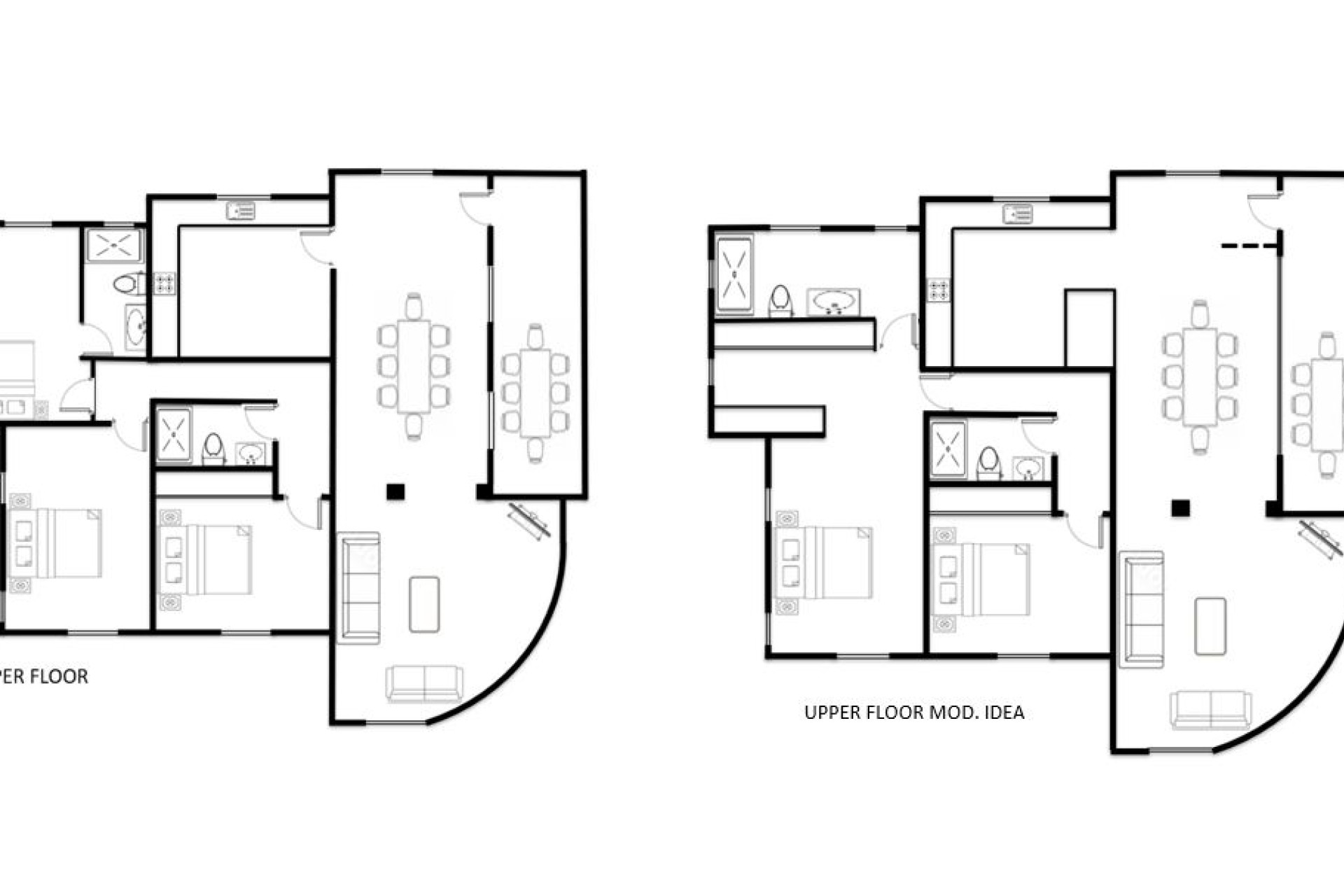
Villa con vistas al mar en venta en la costa de BenissaEsta excepcional villa de cinco dormitorios se encuentra en la codiciada zona de Montemar, en la costa de Benissa, y se presenta en excelentes condiciones. Con una orientación perfecta, la propiedad disfruta de vistas panorámicas al mar Mediterráneo y a la Sierra Bernia, lo que le permite contemplar espectaculares puestas de sol y disfrutar del cálido sol de la tarde.La villa se distribuye en dos niveles, conectados por una escalera interior. La zona de estar principal se encuentra en la planta superior, donde las salas de estar se abren directamente al jardín y a la terraza de la piscina. Esta planta consta de tres dormitorios dobles, dos baños (uno en suite), un luminoso salón con impresionantes vistas al mar desde todas las ventanas, un comedor de generosas dimensiones, una cocina totalmente equipada y una gran terraza cubierta con vistas a la piscina y al mar, con vistas que se extienden hasta el Peñón de Ifach en Calpe.Se puede acceder al nivel inferior tanto desde el interior como a través de una entrada privada desde el jardín. Cuenta con un cómodo salón con acceso al jardín, una sala de estar con una pequeña cocina americana, un dormitorio doble con baño en suite, un baño de invitados con bañera y ducha, un lavadero y una segunda gran sala polivalente ideal para utilizarla como gimnasio, oficina, sala de cine o dormitorio adicional.La propiedad también cuenta con un amplio garaje con espacio para un coche y motos, así como un trastero independiente y una terraza cubierta junto a la piscina.Características de la propiedad:Orientación suroeste perfecta.Segunda terraza cubierta junto a la piscina con preinstalación para una cocina de verano.Vistas despejadas al mar y a la montaña.Piscina climatizada (nuevo calentador de piscina).Dos cubiertas para la piscina, una cubierta térmica y una cubierta de seguridad para niños.Nuevo sistema de calentamiento de agua de gran capacidad con bomba de calor para mayor eficiencia energética.Carpintería exterior con marcos de madera noble, doble acristalamiento y persianas enrollables en los dormitorios.Puerta de seguridad de madera noble (iroko) en la entrada.Aire acondicionado frío y calor en todos los dormitorios y en el salón y el comedor de la planta superior.A 5 minutos en coche del supermercado, la playa y los servicios.Una magnífica oportunidad para adquirir una villa con vistas al mar en uno de los tramos más deseados de la Costa Blanca, ideal como residencia permanente, casa de vacaciones o inversión.
BoCasa es su agente inmobiliario personal en la Costa Blanca. Nuestra zona de trabajo se centra en la zona entre Denia a Calpe y hacia el interior hasta el valle de Jalon con un enfoque en las ciudades de Moraira, Javea, Benissa y Benitachell. Le ayudamos desde el principio hasta el final con la compra o venta de su propiedad en España. Según sus preferencias, seleccionamos viviendas adecuadas, las visitamos junto con usted, negociamos en su nombre y le guiamos en la contratación de profesionales como abogados, asesores hipotecarios, notarios, etc. También estamos a su disposición después de la compra para arreglar todo tipo de asuntos prácticos que se le presenten, pero también, por ejemplo, para las reformas y el amueblamiento de su casa y/o jardín. No dude en ponerse en contacto con nosotros, sin ningún compromiso.