Moderna villa de nueva construcción de estilo ibicenco con vistas al mar cerca de la costa
Esta elegante y moderna villa, inspirada en el estilo atemporal de Ibiza, ofrece una combinación perfecta de materiales naturales, diseño contemporáneo y relajado estilo de vida mediterráneo. Situada a solo 1 km de la playa y de los servicios locales, la propiedad se encuentra en una parcela de estilo rústico de 800 m² fácil de mantener y disfruta de hermosas vistas al mar.
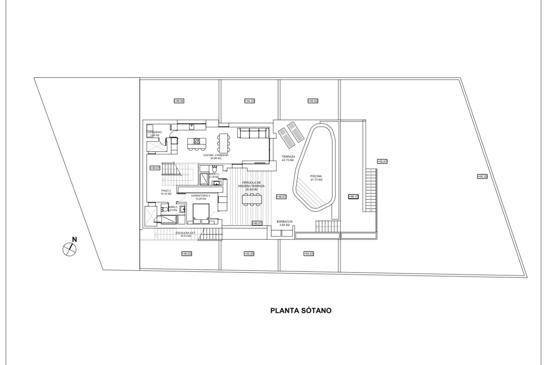
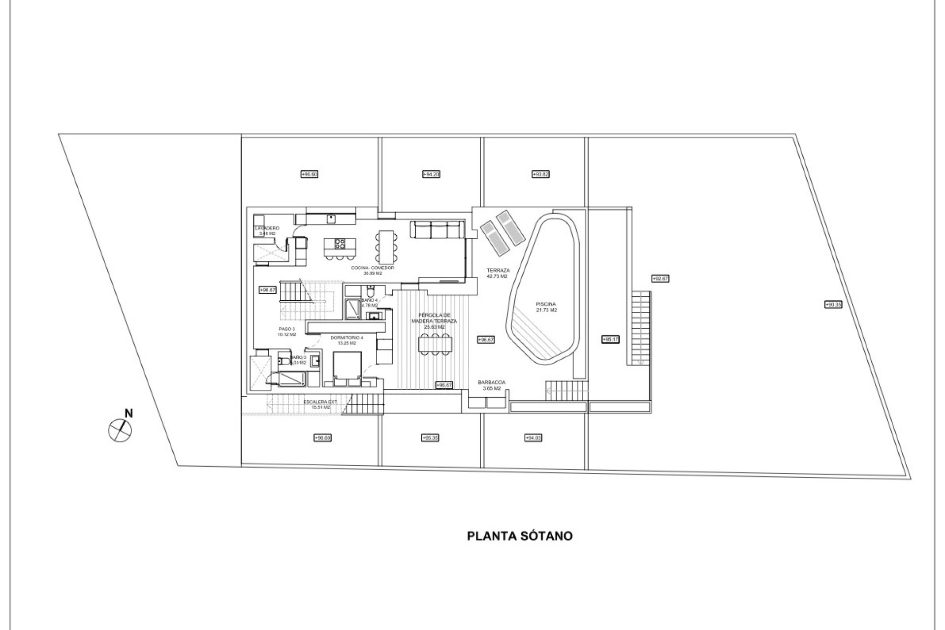
Diseñada para ofrecer comodidad y una vida interior y exterior sin fisuras, la vivienda de 229 m² se distribuye en dos niveles. La planta principal cuenta con una amplia zona de estar diáfana que combina salón, comedor y una moderna cocina, todo ello con acceso directo a la gran terraza. Aquí se encuentra la zona de barbacoa y la piscina, el escenario ideal para entretenerse y disfrutar del clima mediterráneo.
La villa ofrece cuatro dormitorios y cinco baños en total. En la planta principal, un dormitorio con baño privado garantiza la comodidad y la flexibilidad, mientras que la planta superior alberga tres dormitorios adicionales con baño privado. Los grandes ventanales con cristales de seguridad maximizan la luz natural y las vistas en toda la propiedad.
Construida con materiales de alta calidad y tecnología moderna, la vivienda incluye una bomba de calor, calefacción por suelo radiante, un sistema aerotérmico y aire acondicionado por conductos con Airzone. Las características de seguridad y confort incluyen una puerta de entrada reforzada, preinstalación de alarma, videoportero, puerta eléctrica y acristalamiento de seguridad con tecnología Guardian Sun.
El exterior ofrece un encantador paisaje mediterráneo de bajo mantenimiento con un sistema de riego automático. Una hermosa piscina privada, amplias terrazas y acogedores espacios al aire libre completan esta magnífica propiedad.
Características principales:
Parcela: 800 m²Superficie construida: 229 m²4 dormitorios, todos con baño en suite5 baños en totalModerno salón diáfano con acceso directo a la terrazaZona de barbacoa y piscina privadaCalefacción por suelo radiante y aire acondicionado por conductos (Airzone)Bomba de calor y sistema aerotérmico.Ventanas de cristal de seguridad y puerta de entrada reforzada.Preinstalación de alarma, videoportero y puerta eléctrica.Jardín mediterráneo rústico y de bajo mantenimiento.Vistas al mar y excelente proximidad a la playa y a los servicios.Distribución en dos niveles con luz natural y acabados contemporáneos.
Si desea obtener más información sobre esta preciosa villa moderna o concertar una visita, no dude en ponerse en contacto con nosotros, estaremos encantados de atenderle.
BoCasa es su agente inmobiliario personal en la Costa Blanca. Nuestra zona de trabajo se centra en la zona entre Denia a Calpe y hacia el interior hasta el valle de Jalon con un enfoque en las ciudades de Moraira, Javea, Benissa y Benitachell. Le ayudamos desde el principio hasta el final con la compra o venta de su propiedad en España. Según sus preferencias, seleccionamos viviendas adecuadas, las visitamos junto con usted, negociamos en su nombre y le guiamos en la contratación de profesionales como abogados, asesores hipotecarios, notarios, etc. También estamos a su disposición después de la compra para arreglar todo tipo de asuntos prácticos que se le presenten, pero también, por ejemplo, para las reformas y el amueblamiento de su casa y/o jardín. No dude en ponerse en contacto con nosotros, sin ningún compromiso.