Moderna villa de nueva construcción en venta en Benimeit, Moraira. Vistas panorámicas, alto nivel de acabados, 4 dormitorios con baños en suite, piscina y cochera.
Esta moderna villa en Benimeit, Moraira, combina un diseño elegante con una distribución práctica y acabados de alta calidad. La villa tiene vistas panorámicas y es un equilibrio ideal entre comodidad, privacidad y arquitectura moderna. Se espera que la construcción se complete en un plazo de 12 a 15 meses tras la firma del contrato.
Descripción
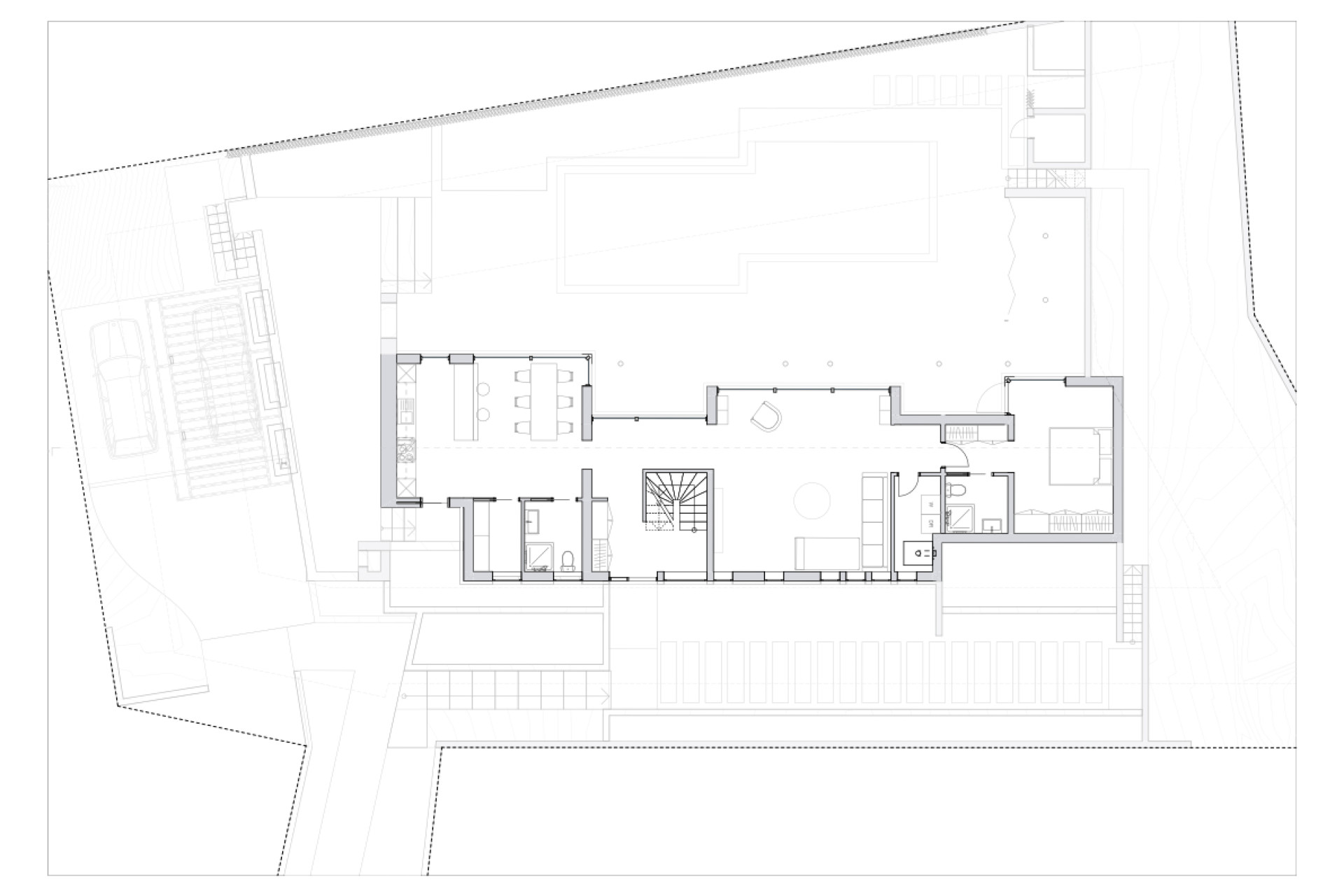
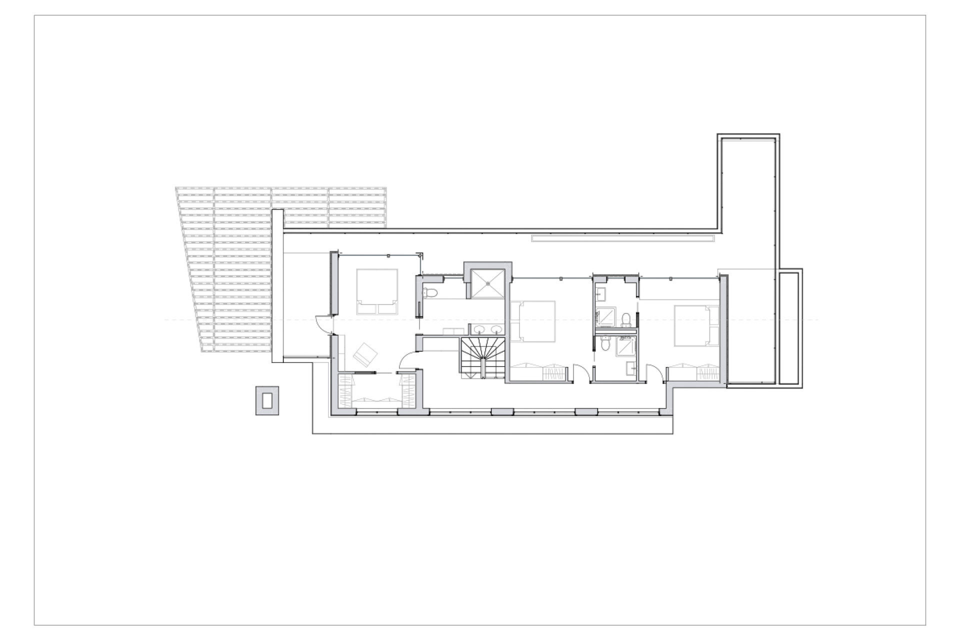
La villa ha sido diseñada prestando especial atención al espacio y la luz. En la planta baja hay un amplio salón con grandes ventanales de suelo a techo, una cocina moderna con zona de comedor y lavadero, un cuarto de baño adicional o aseo de invitados, un lavadero y un dormitorio con cuarto de baño en suite. Desde el vestíbulo se accede a una escalera que conduce a la planta superior. Aquí se encuentra el dormitorio principal con vestidor, baño en suite y terraza privada, además de dos dormitorios adicionales, cada uno con su propio baño y acceso a una terraza.
En el exterior hay una gran terraza soleada con piscina, varias terrazas cubiertas y una cochera con capacidad para varios vehículos. La villa es ideal para quienes buscan una vivienda cómoda con líneas contemporáneas y una distribución funcional.
Características
Vistas panorámicas Alta calidad de construcción y acabadosVentanas de suelo a techo para una iluminación óptimaPiscina con amplia terraza y zonas de descanso cubiertasCarport para varios vehículosTodos los dormitorios tienen baño en suitePor qué visitar esta villa
Excelente calidad de construcciónExcelente ubicaciónHabitaciones y espacios ampliosUn proyecto excelente para una vivienda cómoda para quienes desean vivir con visión de futuro en Moraira, Costa Blanca.
¿Le interesa este elegante proyecto? Deje que uno de nuestros comerciales le informe. ¡Llámenos o visítenos!
BoCasa es su agente inmobiliario personal en la Costa Blanca. Nuestra zona de trabajo se centra en la zona entre Denia a Calpe y hacia el interior hasta el valle de Jalon con un enfoque en las ciudades de Moraira, Javea, Benissa y Benitachell. Le ayudamos desde el principio hasta el final con la compra o venta de su propiedad en España. Según sus preferencias, seleccionamos viviendas adecuadas, las visitamos junto con usted, negociamos en su nombre y le guiamos en la contratación de profesionales como abogados, asesores hipotecarios, notarios, etc. También estamos a su disposición después de la compra para arreglar todo tipo de asuntos prácticos que se le presenten, pero también, por ejemplo, para las reformas y el amueblamiento de su casa y/o jardín. No dude en ponerse en contacto con nosotros, sin ningún compromiso.