Moderne nieuwbouwvilla te koop in Benimeit, Moraira. Panoramisch uitzicht, hoog afwerkingsniveau, 4 slaapkamers met en-suite badkamers, zwembad en carport.
Deze moderne villa in Benimeit, Moraira combineert een strak ontwerp met een praktische indeling en hoogwaardige afwerking. De villa heeft panoramisch uitzicht en is een ideale balans tussen comfort, privacy en moderne architectuur. De bouw wordt naar verwachting voltooid binnen 12 tot 15 maanden na ondertekening van het contract.
Beschrijving
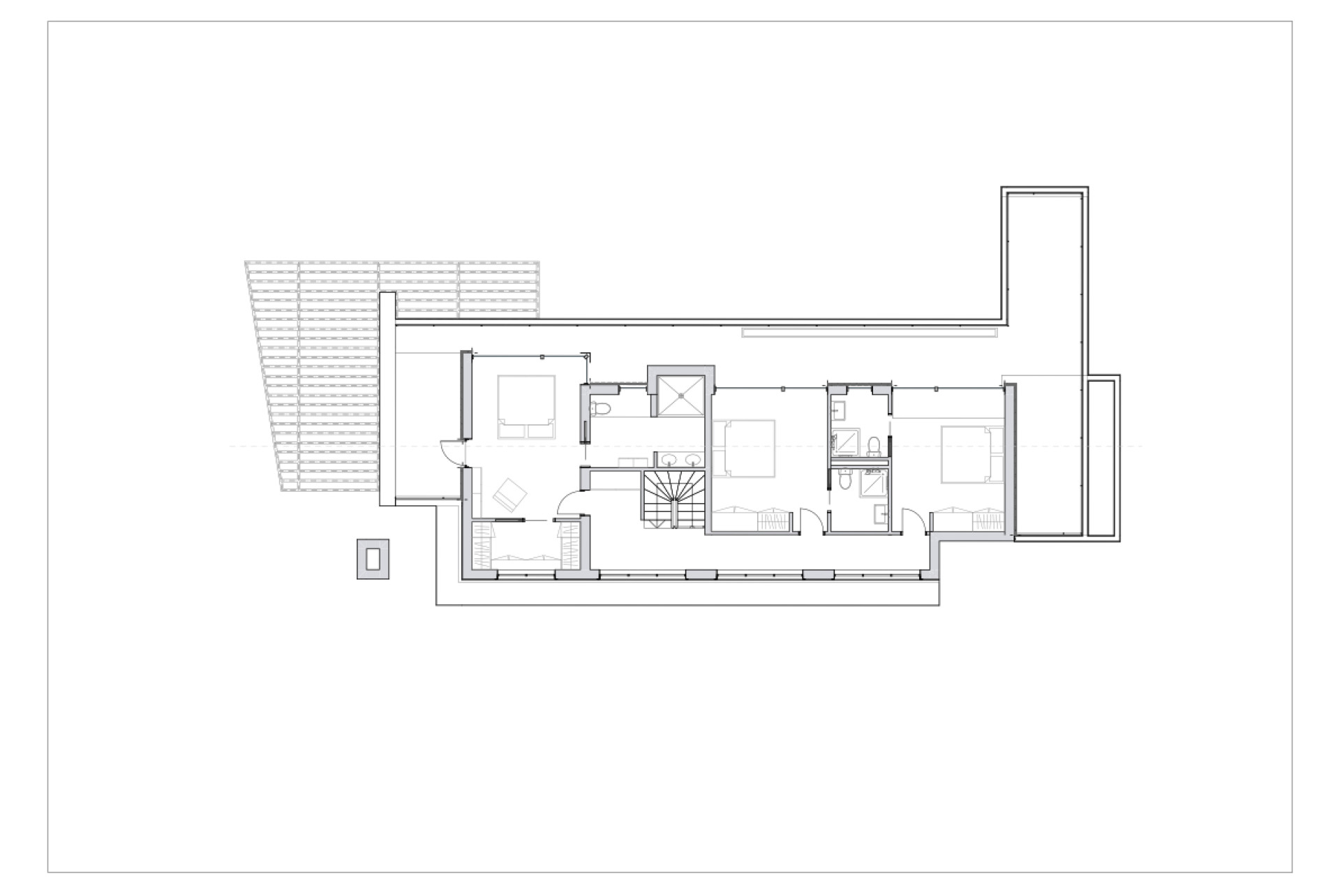
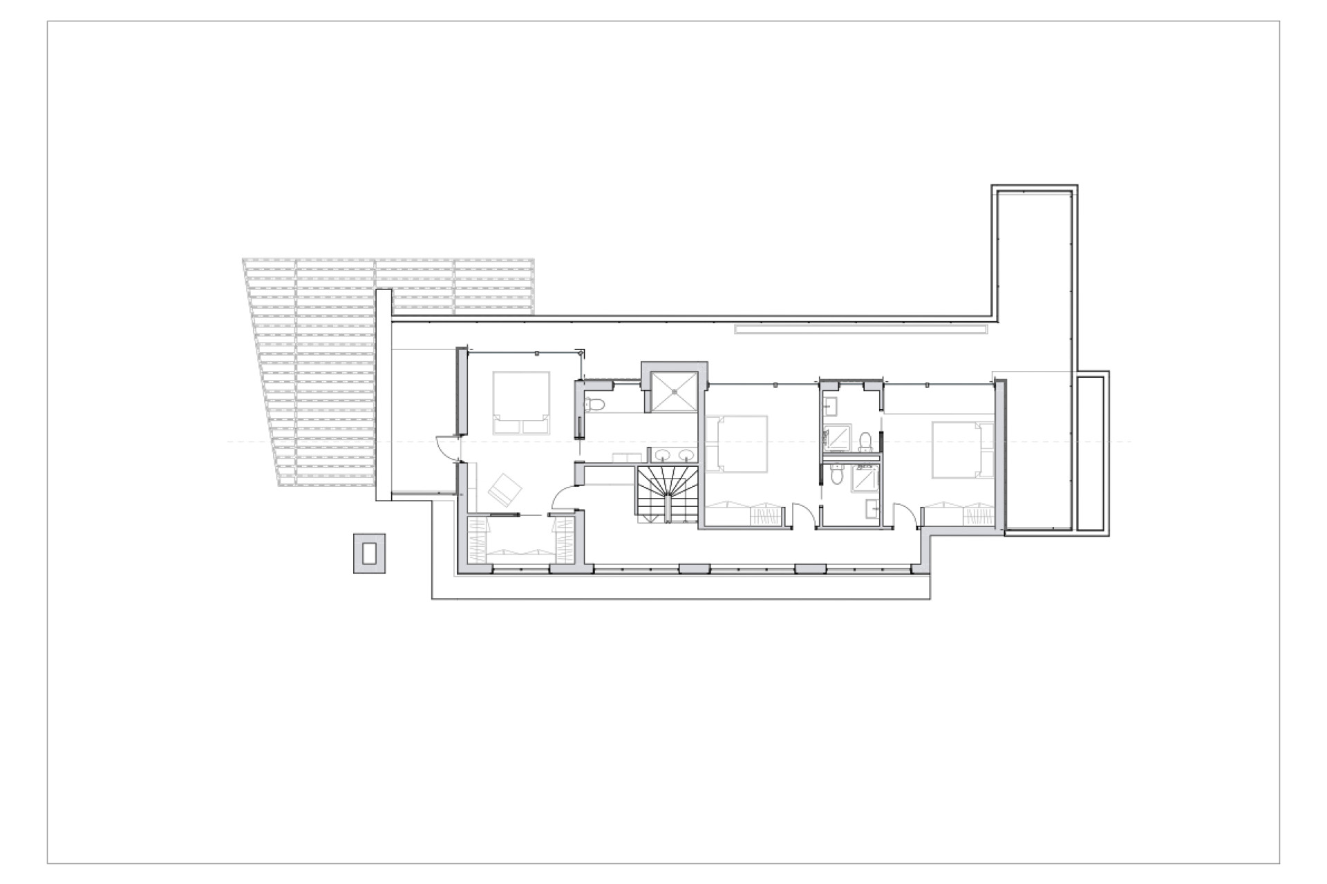
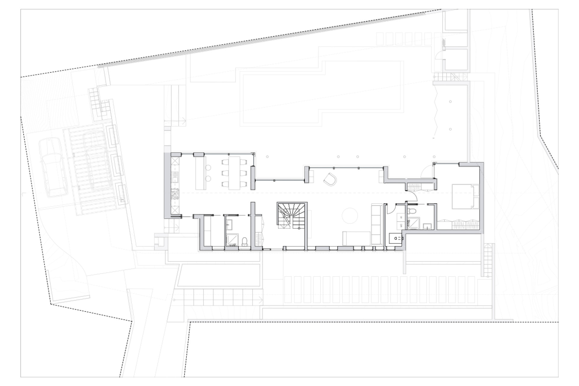
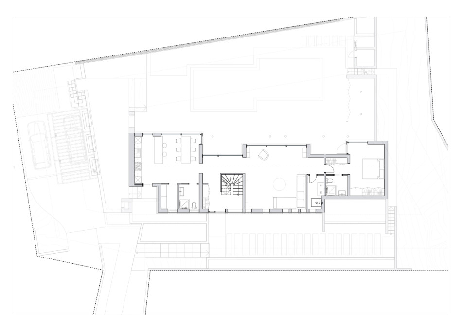
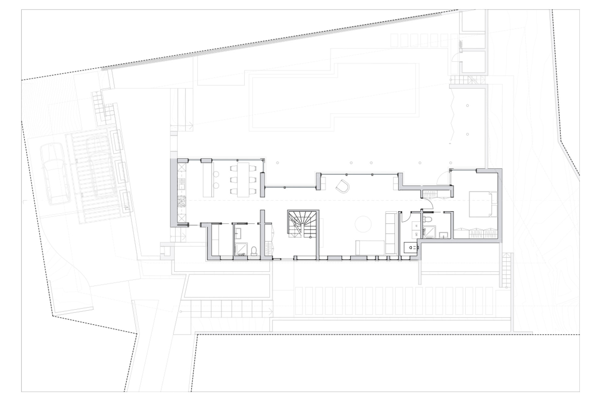
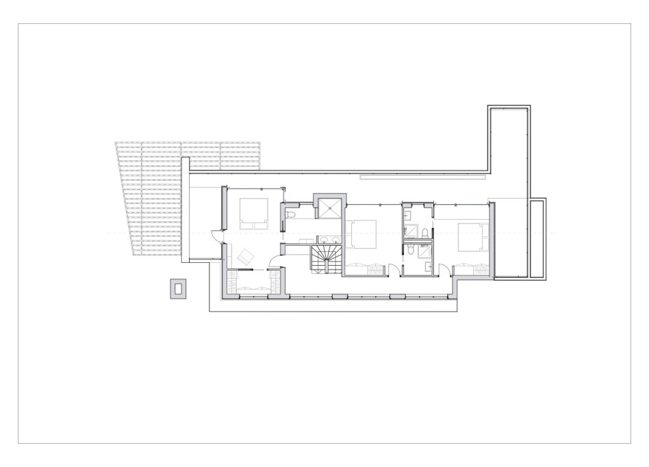
De villa is ontworpen met aandacht voor ruimte en licht. Op de begane grond bevindt zich een ruime woonkamer met grote ramen van vloer tot plafond, een moderne keuken met eetgedeelte en bijkeuken, een extra badkamer c.q. gastentoilet, een wasruimte en een slaapkamer met en-suite badkamer. Vanuit de hal gaat een trap naar boven. Hier is de master bedroom met dressing, en-suite badkamer en privéterras, plus twee extra slaapkamers, elk met een eigen badkamer en toegang tot een terras.
Buiten vindt u een groot zonneterras met zwembad, diverse overdekte terrassen en een carport geschikt voor diverse voertuigen. De villa is ideaal voor wie een comfortabele woning zoekt met hedendaagse lijnen en een functionele indeling.
Bijzonderheden
Panoramisch uitzicht Hoge bouwkwaliteit en afwerkingsniveauVloer-tot-plafond ramen voor optimaal lichtZwembad met ruim terras en overdekte loungezonesCarport voor meerdere voertuigenAlle slaapkamers hebben en-suite badkamersWaarom deze villa bezichtigen
Uitstekende bouwkwaliteitPrima ligging Grote kamers en ruimtesEen uitstekend project voor een comfortabele woning voor wie toekomstgericht wil wonen in Moraira, Costa Blanca.
Geïnteresseerd geraakt in dit stijlvolle project? Laat u informeren door één van onze commerciële medewerkers. Bel of kom langs!
BoCasa is uw persoonlijke Nederlandstalige makelaar aan de Costa Blanca. Onze aandacht richt zich op het gebied tussen Denia en Calpe en landinwaarts tot aan de Jalon vallei met een focus op de plaatsen Moraira, Javea, Benissa en Benitachell. Wij helpen u van A to Z bij de aankoop of verkoop van uw woning in Spanje. Aan de hand van uw wensen selecteren wij geschikte woningen, bezichtigen deze samen met u, voeren de onderhandelingen in samenspraak en begeleiden u bij het inschakelen van professionele partners, zoals advocaten, hypotheekadviseurs, notarissen etc. Ook na de aankoop staan wij voor u klaarvoor het regelen van allerlei praktische zaken waar u tegenaan loopt maar bijvoorbeeld ook voor verbouwingen en de inrichting van uw huis en/of tuin. Neem gerust, geheel vrijblijvend, contact met ons op.