¡Hablando de especial! Esta finca única, que data del año 1642 (!), fue en su día el hogar de varios padres que difundían el evangelio en sus burros y era conocida por la población local como «Casa de Piedra». Hoy en día se ha convertido en una preciosa finca a poca distancia del centro de Moraira (por ejemplo, a solo 6 minutos en coche de Cala L'Andragó con Algas, el Foodbar, La Cabana, etc.). La finca ofrece, por un lado, un estilo arquitectónico auténtico con un amplio uso de piedra natural en una parcela espaciosa, detalles auténticos como el pozo original y el patio con un horno original y, por otro lado, habitaciones muy amplias con detalles contemporáneos, baños modernos, una ubicación muy bonita junto a una zona verde y unas vistas panorámicas excepcionales al mar. También cuenta con una casa de invitados totalmente independiente (antiguamente el establo de los burros) con total privacidad respecto a la vivienda principal.
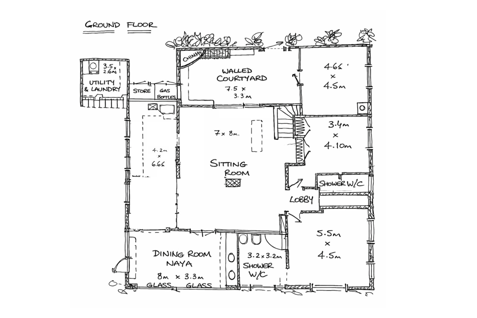
La parcela llana y totalmente vallada es accesible a través de una puerta de entrada automática, detrás de la cual encontramos aparcamiento para varios coches y acceso al garaje con espacio para 2 coches. En la planta baja encontramos un amplio salón con chimenea. A un lado linda con una naya que, con grandes ventanales hasta el suelo, se ha convertido en un maravilloso lugar de relax con unas vistas magníficas, y al otro lado da paso a la cocina. Además, hay dos amplios dormitorios, cada uno con su propio cuarto de baño, y otra habitación a través del patio que puede utilizarse como dormitorio adicional, pero también como despacho, gimnasio, etc. En la primera planta encontramos un espacio abierto muy amplio que consta de un dormitorio principal con un gran cuarto de baño, un salón con chimenea y puertas que dan a una amplia terraza con, de nuevo, unas vistas magníficas. Alrededor de la casa hay un jardín muy acogedor con una gran piscina orientada al sur y una amplia terraza, equipada con varios asientos con zonas de sol y sombra. Además, en una parte completamente separada de la parcela, y fuera de la vista de la vivienda principal, se encuentra la casa de invitados, que consta de una sala de estar con cocina, un dormitorio y un cuarto de baño. Por las noches, la finca se sumerge aún más en la intimidad gracias a la acogedora iluminación del jardín.
BoCasa es su agente inmobiliario personal en la Costa Blanca. Nuestra zona de trabajo se centra en la zona entre Denia a Calpe y hacia el interior hasta el valle de Jalon con un enfoque en las ciudades de Moraira, Javea, Benissa y Benitachell. Le ayudamos desde el principio hasta el final con la compra o venta de su propiedad en España. Según sus preferencias, seleccionamos viviendas adecuadas, las visitamos junto con usted, negociamos en su nombre y le guiamos en la contratación de profesionales como abogados, asesores hipotecarios, notarios, etc. También estamos a su disposición después de la compra para arreglar todo tipo de asuntos prácticos que se le presenten, pero también, por ejemplo, para las reformas y el amueblamiento de su casa y/o jardín. No dude en ponerse en contacto con nosotros, sin ningún compromiso.