Moderna villa mediterránea con vistas al mar y un diseño arquitectónico excepcional
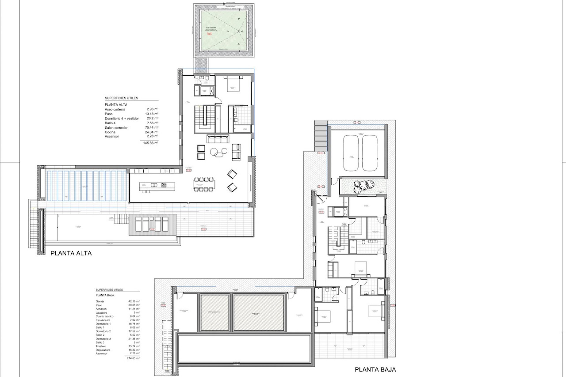
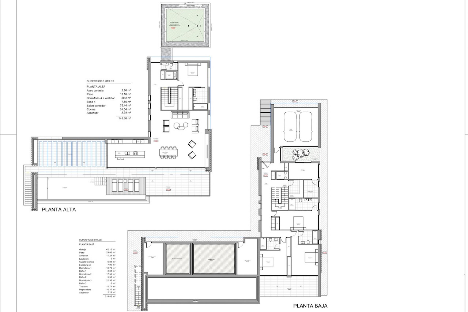
Situada en una generosa parcela de 1274 m², esta villa de bella factura combina la geometría contemporánea con la calidez de los materiales mediterráneos. Los planos horizontales de hormigón y las paredes verticales de piedra natural aportan estructura y elegancia, mientras que las amplias terrazas y los grandes ventanales crean una conexión perfecta entre los espacios interiores y exteriores. Con 360 m² de refinada superficie habitable distribuida en dos plantas, esta vivienda ofrece comodidad, sofisticación y un estilo atemporal.
La distribución ha sido diseñada pensando tanto en la practicidad como en la belleza. La planta baja alberga la zona de noche, con tres amplios dormitorios con baño y un garaje para dos coches, trasteros y lavaderos, lo que garantiza la privacidad y la comodidad. Un ascensor interno proporciona un acceso sin esfuerzo a la planta superior, donde se encuentra la sala de estar principal. Aquí, un luminoso cuarto dormitorio con baño privado se encuentra junto a una impresionante sala de estar, comedor y cocina de planta abierta con un aseo para invitados. Las ventanas de suelo a techo enmarcan las hermosas vistas al mar y se abren completamente a la terraza, donde una pérgola crea una segunda sala de estar al aire libre y una elegante zona de barbacoa.
En el interior, la paleta de materiales combina estuco blanco, piedra seca y sutiles toques de madera para aportar calidez y refinamiento. Todos los baños ofrecen acabados de primera calidad, incluyendo mamparas de cristal empotradas, gres porcelánico de gran formato y accesorios de primera calidad. El exterior se completa con amplias terrazas y una impresionante piscina de 5 × 11 m, un lugar ideal para disfrutar del estilo de vida mediterráneo.
Características principales:
Superficie del terreno: 1274 m²Superficie construida: 360 m²Dos niveles conectados por ascensor4 dormitorios, todos con baño en suiteSalón, comedor y cocina diáfanos en la planta superiorGrandes ventanas con vistas panorámicas al marAmplias terrazas, tanto cubiertas como descubiertasPérgola que crea una segunda sala de estar al aire libreZona de barbacoaPiscina de 5 × 11 mGaraje para 2 coches.Materiales de alta calidad y acabados de baño de primera calidad.Paleta mediterránea con detalles en piedra, estuco y madera.Abundante luz natural y excelente eficiencia energética.
Si desea más información o concertar una visita, póngase en contacto con nosotros, estaremos encantados de atenderle.
BoCasa es su agente inmobiliario personal en la Costa Blanca. Nuestra zona de trabajo se centra en la zona entre Denia a Calpe y hacia el interior hasta el valle de Jalon con un enfoque en las ciudades de Moraira, Javea, Benissa y Benitachell. Le ayudamos desde el principio hasta el final con la compra o venta de su propiedad en España. Según sus preferencias, seleccionamos viviendas adecuadas, las visitamos junto con usted, negociamos en su nombre y le guiamos en la contratación de profesionales como abogados, asesores hipotecarios, notarios, etc. También estamos a su disposición después de la compra para arreglar todo tipo de asuntos prácticos que se le presenten, pero también, por ejemplo, para las reformas y el amueblamiento de su casa y/o jardín. No dude en ponerse en contacto con nosotros, sin ningún compromiso.