Moderne mediterrane villa met uitzicht op zee en uitzonderlijk architectonisch ontwerp
Deze prachtig ontworpen villa staat op een royaal perceel van 1.274 m² en combineert eigentijdse geometrie met de warmte van mediterrane materialen. Horizontale betonnen vlakken en verticale natuurstenen muren zorgen voor structuur en elegantie, terwijl ruime terrassen en grote ramen een naadloze verbinding creëren tussen binnen- en buitenruimtes. Met 360 m² verfijnde leefruimte verdeeld over twee verdiepingen biedt deze woning comfort, verfijning en een tijdloze stijl.
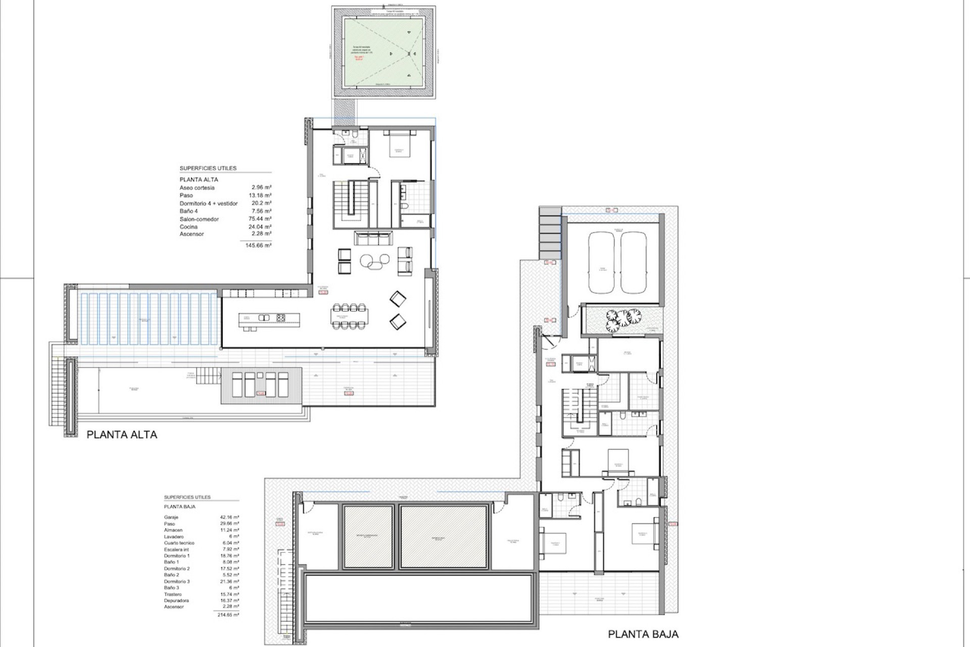
De indeling is ontworpen met het oog op zowel functionaliteit als schoonheid. Op de begane grond bevindt zich het slaapgedeelte met drie ruime slaapkamers met eigen badkamer en een garage voor twee auto's, opslagruimtes en wasruimtes, die privacy en gemak garanderen. Een interne lift biedt moeiteloze toegang tot de bovenverdieping, waar de belangrijkste leefruimte zich ontvouwt. Hier bevindt zich een lichte vierde slaapkamer met eigen badkamer naast een prachtige open woon-, eet- en keukenruimte met een gastentoilet. Kamerhoge ramen bieden een prachtig uitzicht op zee en kunnen volledig worden geopend naar het terras, waar een pergola een tweede buitenwoonkamer en een elegante barbecueplaats creëert.
Binnen combineert het materiaalpalet wit stucwerk, droogsteen en subtiele houten accenten voor warmte en verfijning. Alle badkamers zijn voorzien van hoogwaardige afwerkingen, waaronder verzonken glazen schermen, grootformaat porseleinen tegels en hoogwaardige armaturen. De buitenkant wordt gecompleteerd door royale terrassen en een opvallend zwembad van 5 × 11 m - een ideale plek om de mediterrane levensstijl te omarmen.
Belangrijkste kenmerken:
Perceeloppervlakte: 1.274 m²Bebouwde oppervlakte: 360 m²Twee verdiepingen verbonden door een lift4 slaapkamers, allemaal met eigen badkamerOpen woonkamer, eetkamer en keuken op de bovenverdiepingGrote ramen met panoramisch uitzicht op zeeRuime terrassen, zowel overdekt als openPergola die een tweede buitenwoonkamer creëertBarbecueplaatsZwembad van 5 × 11 mGarage voor 2 auto'sHoogwaardige materialen en luxe badkamerafwerkingMediterraan kleurenpalet met accenten van steen, stucwerk en houtOvervloedig natuurlijk licht en uitstekende energie-efficiëntie
Neem contact met ons op voor meer informatie of om een bezichtiging te regelen. Wij helpen u graag verder.
BoCasa is uw persoonlijke Nederlandstalige makelaar aan de Costa Blanca. Onze aandacht richt zich op het gebied tussen Denia en Calpe en landinwaarts tot aan de Jalon vallei met een focus op de plaatsen Moraira, Javea, Benissa en Benitachell. Wij helpen u van A to Z bij de aankoop of verkoop van uw woning in Spanje. Aan de hand van uw wensen selecteren wij geschikte woningen, bezichtigen deze samen met u, voeren de onderhandelingen in samenspraak en begeleiden u bij het inschakelen van professionele partners, zoals advocaten, hypotheekadviseurs, notarissen etc. Ook na de aankoop staan wij voor u klaarvoor het regelen van allerlei praktische zaken waar u tegenaan loopt maar bijvoorbeeld ook voor verbouwingen en de inrichting van uw huis en/of tuin. Neem gerust, geheel vrijblijvend, contact met ons op.