Dit project voor een moderne villa ligt in een van de beste wijken van Moraira in La Sabatera, op slechts 5 minuten van het stadscentrum waar je alle restaurants, bars, winkels en het zandstrand kunt ontdekken. Met vier slaapkamers, vier badkamers en perfect zeezicht heb je hier het beste van alles. Locatie, kwaliteit en stijl!
Het ontwerp maakt optimaal gebruik van de prachtige natuurlijke omgeving eromheen en de goede weersomstandigheden het hele jaar door. Het heeft grote terrassen en grote ramen die het huis het hele jaar door van uitzonderlijk natuurlijk licht voorzien.
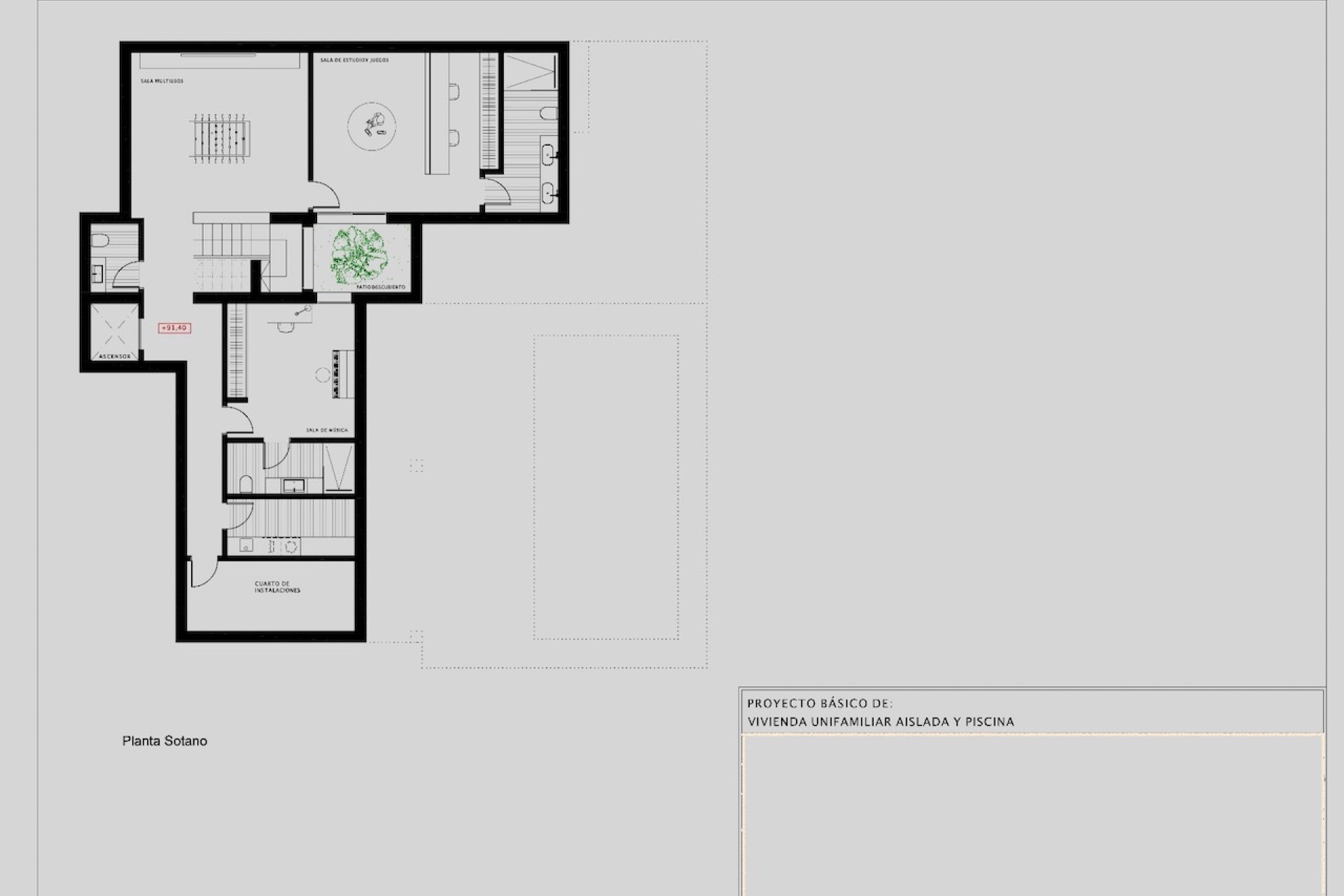
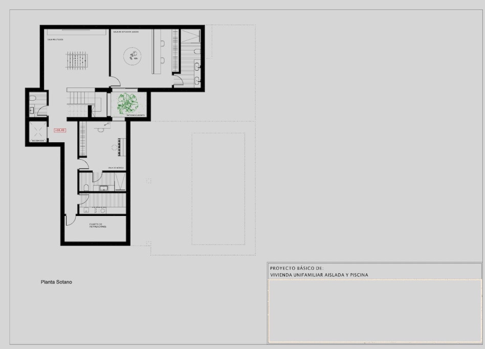
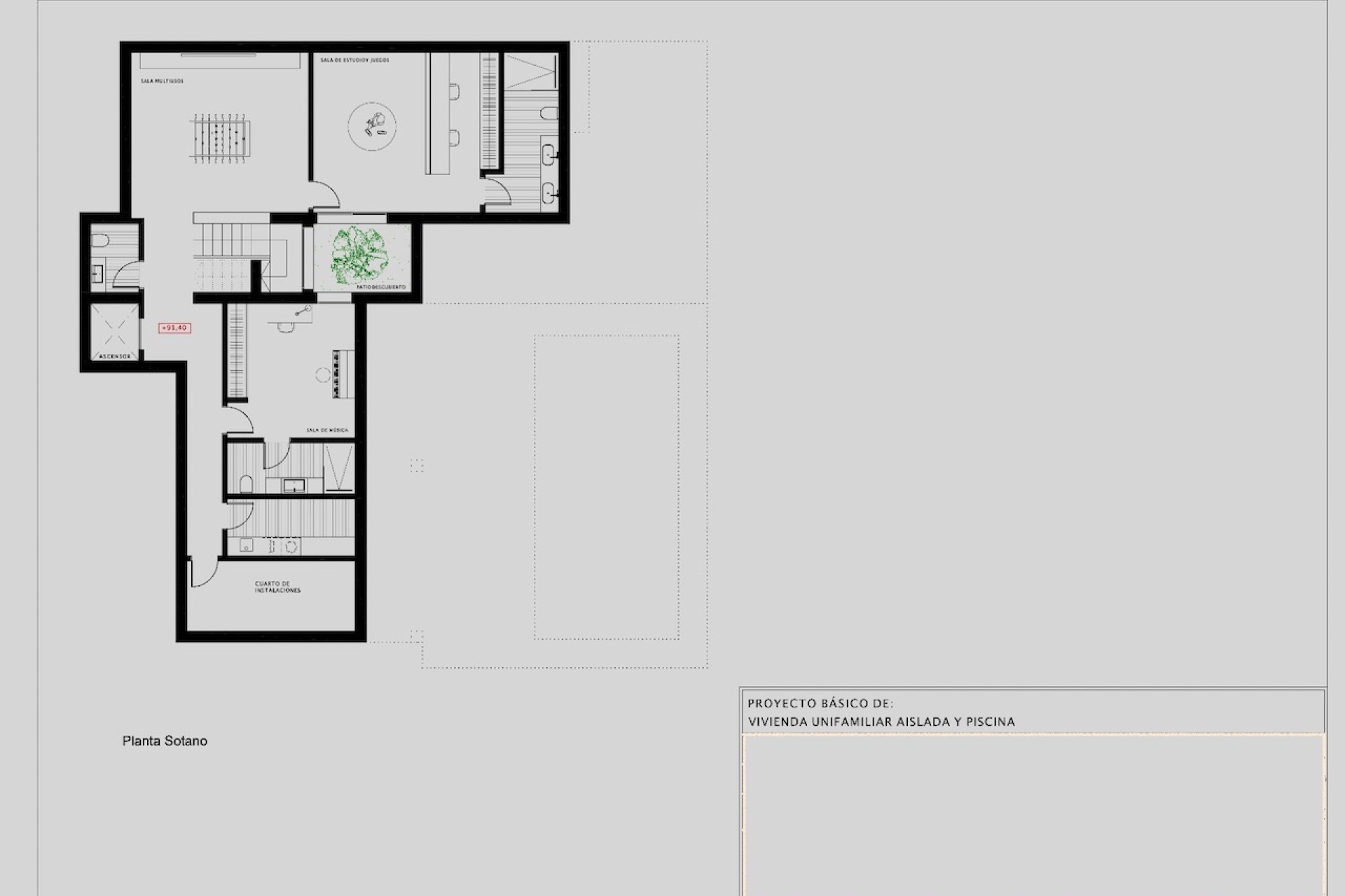
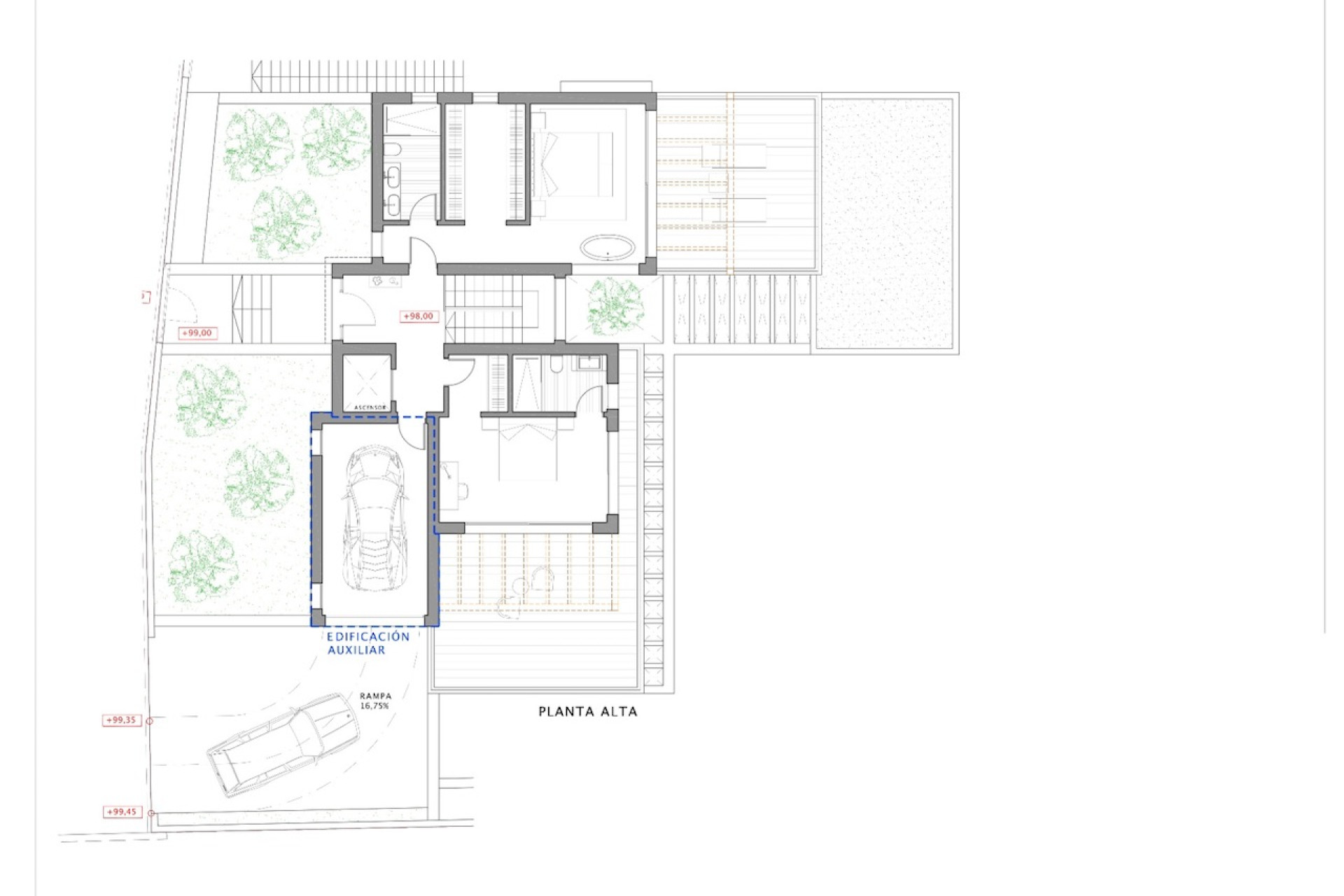
De villa heeft drie verdiepingen.
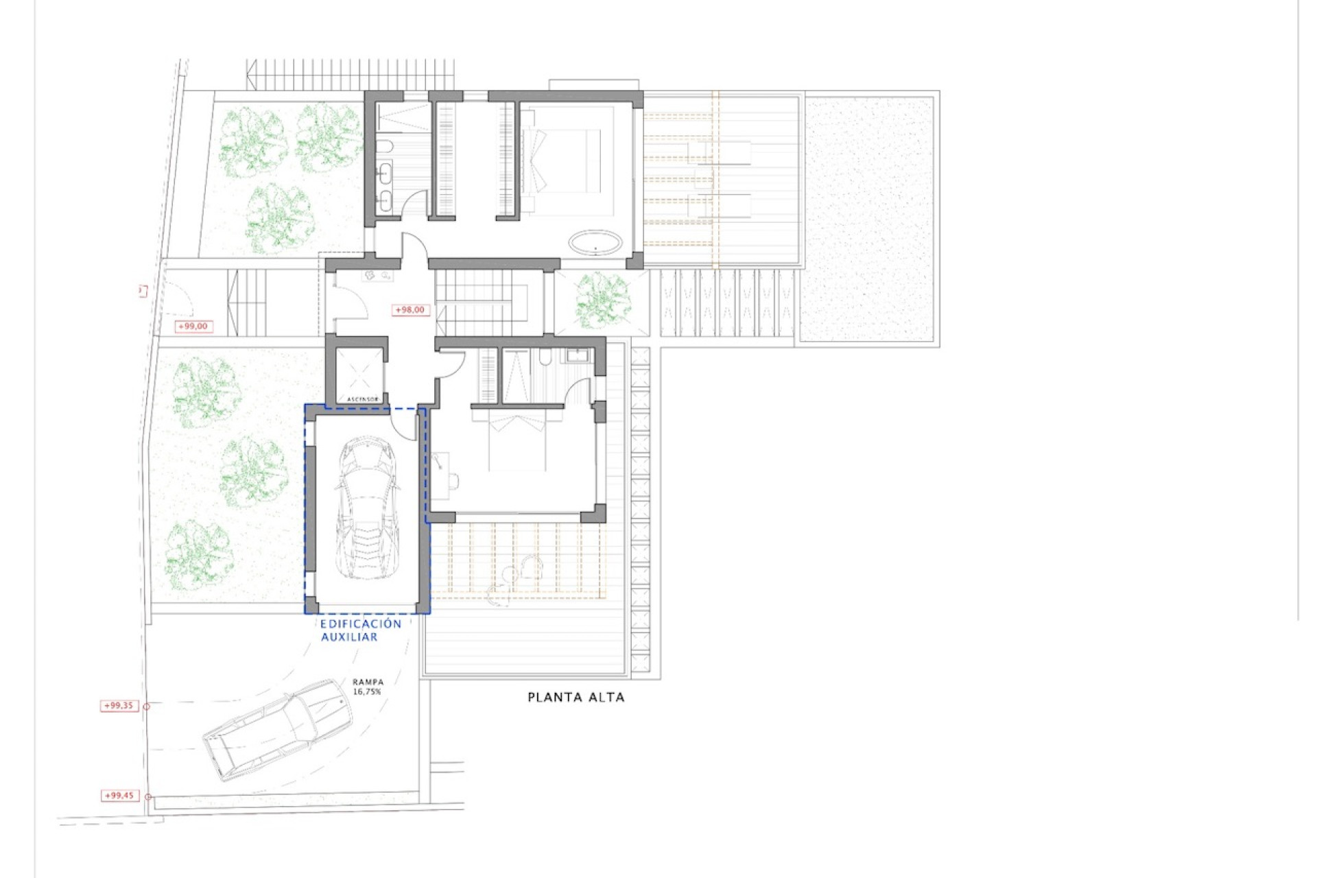
Je betreedt de villa via de bovenverdieping waar je drie tweepersoonsslaapkamers, drie badkamers en een zitkamer vindt.
Op de benedenverdieping vind je een grote eet- en zitkamer met een volledig ingerichte keuken en bijkeuken. Er is nog een slaapkamer met en-suite badkamer en een gastentoilet.Grote glazen deuren openen van hieruit direct naar het zwembadterras en de buitenruimte voor entertainment. Het zwembad van 12 x 4,5 m2 wordt omringd door een terras op het zuiden met een zomerkeuken en BBQ en een buitentoilet.
In de onderbouw is er een mogelijkheid om extra slaapkamers te bouwen of kan worden gebruikt als opslagruimte, speelruimte...
Een lift verbindt alle verdiepingen.
BELANGRIJKSTE KENMERKEN:
Vier slaapkamers met vier badkamers en toiletUitzicht op zeeInfinity zwembad 12x4,5 m2LiftElektrische poortenCCTV/ AlarmAirconditioning & vloerverwarmingMogelijk tot bouwen van garageRuime onderbouw
Bel ons nu om een afspraak te maken.
BoCasa is uw persoonlijke Nederlandstalige makelaar aan de Costa Blanca. Onze aandacht richt zich op het gebied tussen Denia en Calpe en landinwaarts tot aan de Jalon vallei met een focus op de plaatsen Moraira, Javea, Benissa en Benitachell. Wij helpen u van A to Z bij de aankoop of verkoop van uw woning in Spanje. Aan de hand van uw wensen selecteren wij geschikte woningen, bezichtigen deze samen met u, voeren de onderhandelingen in samenspraak en begeleiden u bij het inschakelen van professionele partners, zoals advocaten, hypotheekadviseurs, notarissen etc. Ook na de aankoop staan wij voor u klaarvoor het regelen van allerlei praktische zaken waar u tegenaan loopt maar bijvoorbeeld ook voor verbouwingen en de inrichting van uw huis en/of tuin. Neem gerust, geheel vrijblijvend, contact met ons op.