Esta moderna villa en Benissa está distribuida en tres plantas y disfruta de bonitas vistas al mar y al Peñón de Ifach. Diseñada con materiales naturales y tonos claros, la propiedad ofrece un ambiente mediterráneo elegante y luminoso gracias a sus grandes ventanales.
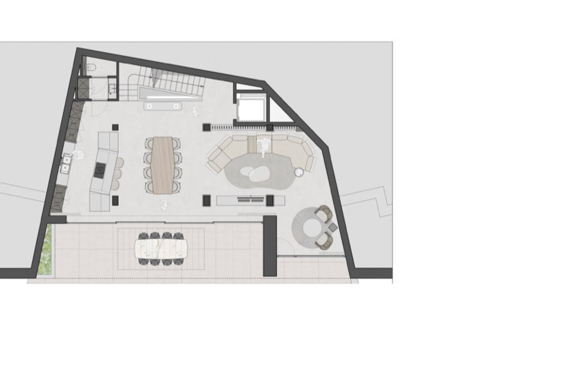
La villa se encuentra en una parcela de 770 m² y ofrece aproximadamente 291 m² construidos, además de unos 200 m² de terrazas y una piscina privada de 4 x 8 m. La planta principal cuenta con un amplio salón, comedor y cocina de concepto abierto con acceso directo a la terraza de la piscina.
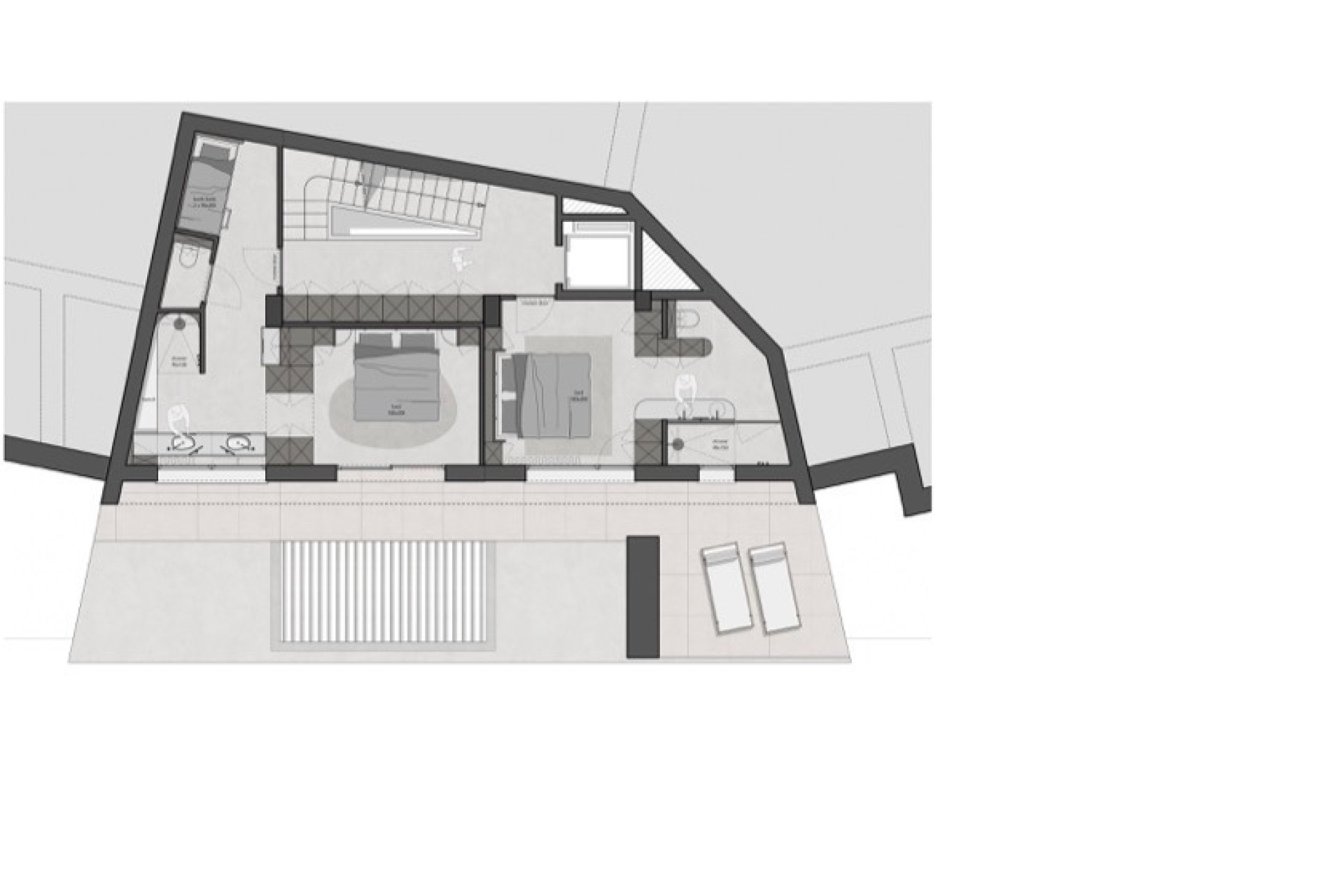
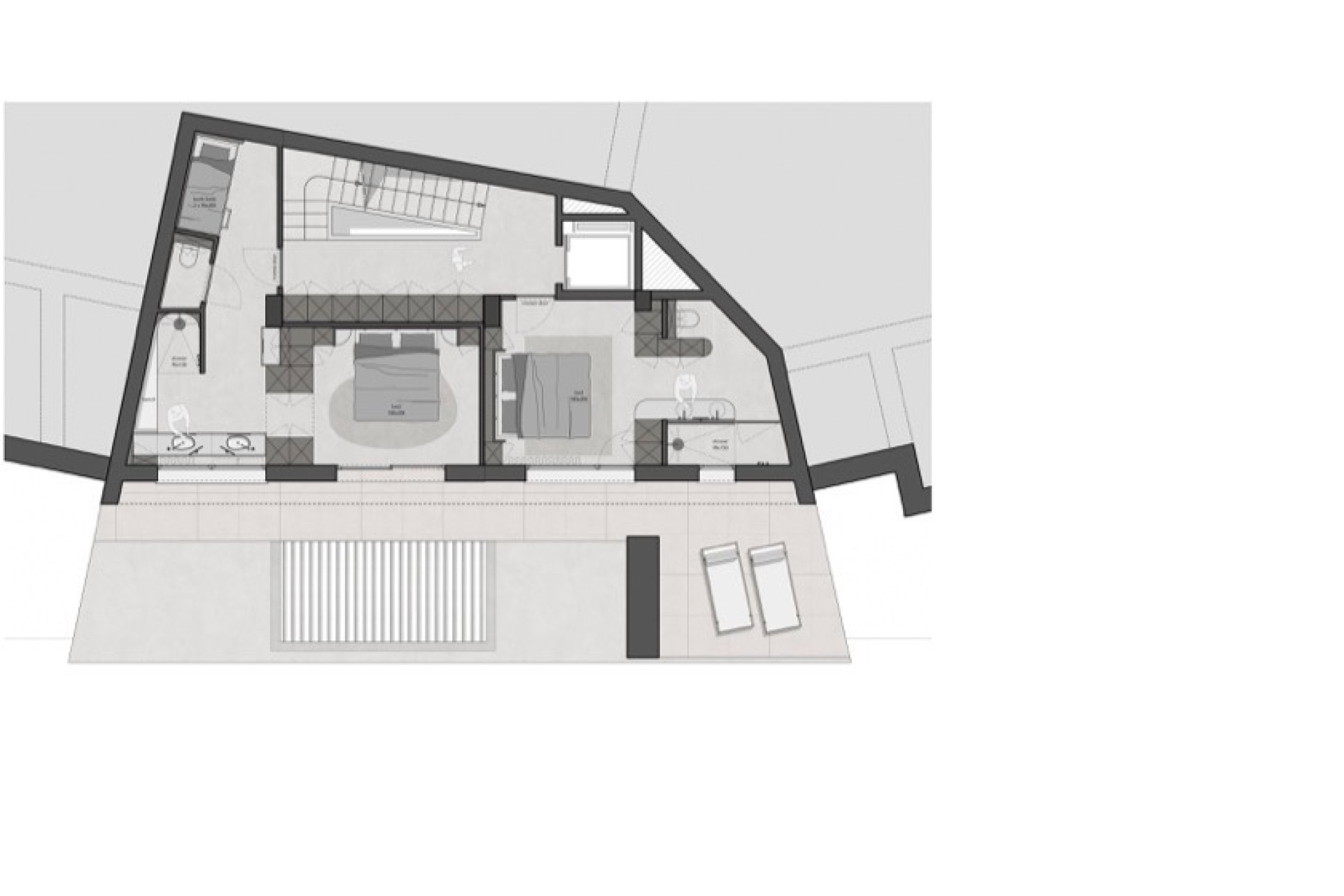
En la primera planta hay dos dormitorios con baño en suite, uno de ellos con literas adicionales. La planta superior está dedicada a la suite principal con vestidor, baño en suite y una terraza privada en la azotea con impresionantes vistas al mar y al Peñón de Ifach.
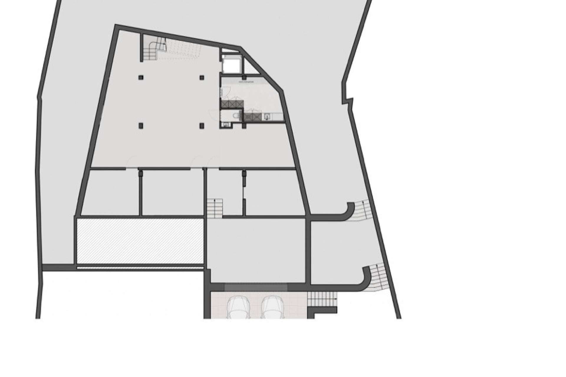
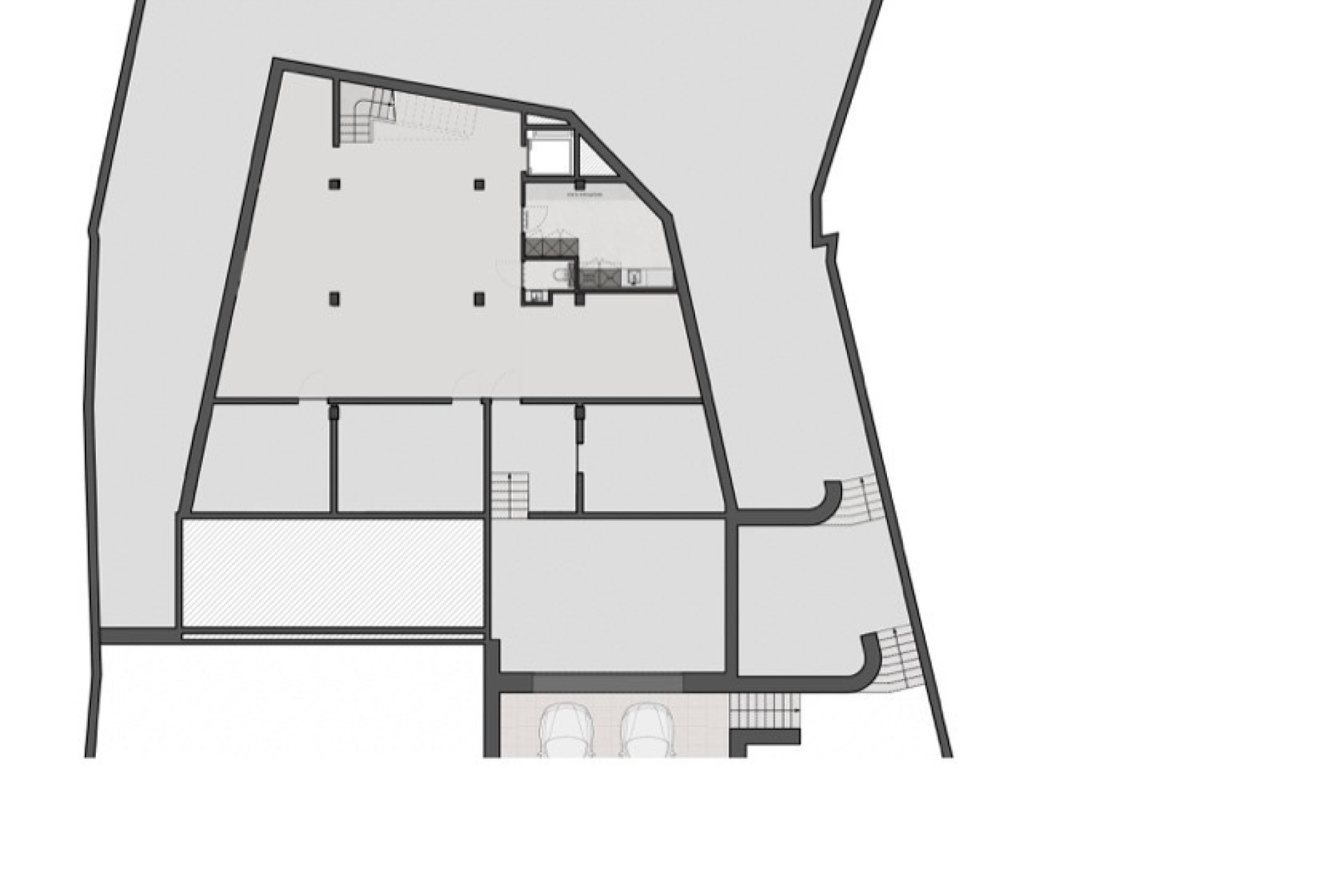
El sótano incluye una bodega, lavadero y varias estancias que pueden convertirse en gimnasio, sala de cine o sala de juegos. La propiedad también dispone de garaje para dos coches, aparcamiento adicional, ascensor y aire acondicionado.
Para más información o para concertar una visita, no dude en ponerse en contacto con nosotros.
BoCasa es su agente inmobiliario personal en la Costa Blanca. Nuestra zona de trabajo se centra en la zona entre Denia a Calpe y hacia el interior hasta el valle de Jalon con un enfoque en las ciudades de Moraira, Javea, Benissa y Benitachell. Le ayudamos desde el principio hasta el final con la compra o venta de su propiedad en España. Según sus preferencias, seleccionamos viviendas adecuadas, las visitamos junto con usted, negociamos en su nombre y le guiamos en la contratación de profesionales como abogados, asesores hipotecarios, notarios, etc. También estamos a su disposición después de la compra para arreglar todo tipo de asuntos prácticos que se le presenten, pero también, por ejemplo, para las reformas y el amueblamiento de su casa y/o jardín. No dude en ponerse en contacto con nosotros, sin ningún compromiso.