This modern villa in Benissa is distributed over three levels and enjoys beautiful sea views as well as views towards the Peñón de Ifach. Designed with natural materials and light colours, the property offers a stylish yet warm Mediterranean atmosphere with large windows that fill the interior with natural light.
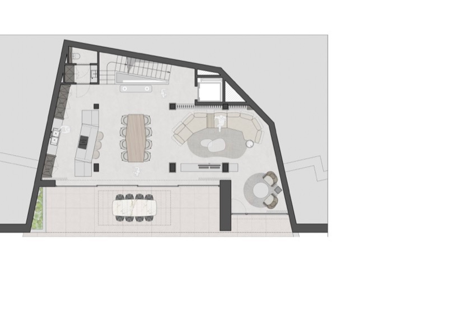
The villa sits on a 770 m² plot and offers approximately 291 m² of living space with around 200 m² of terraces and a private 4 x 8 m swimming pool. The ground floor features a spacious open-plan living, dining and kitchen area with direct access to the pool terrace.
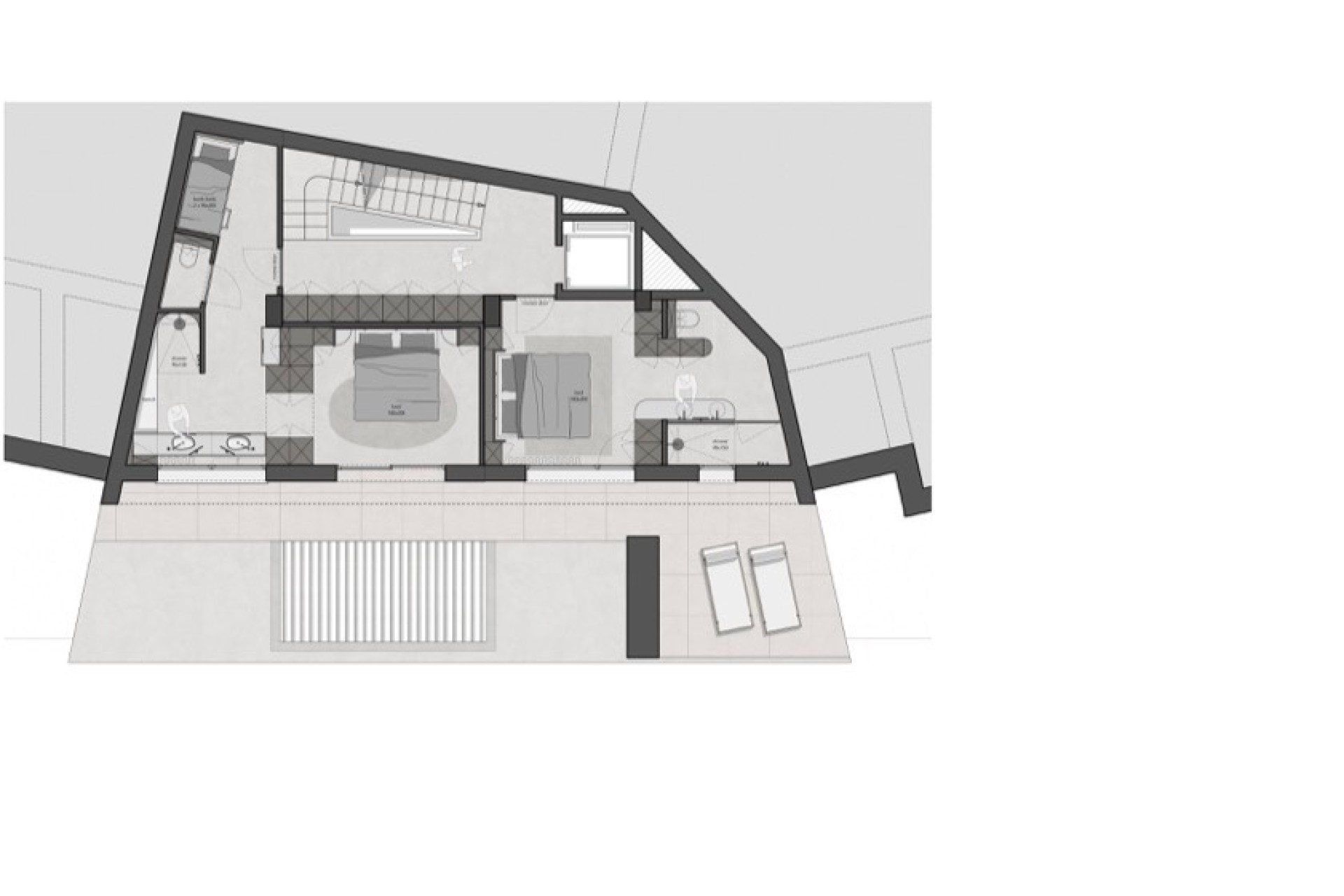
The first floor offers two bedrooms with en-suite bathrooms, one with additional bunk beds. The top floor is dedicated to the master suite with walk-in wardrobe, en-suite bathroom and a private roof terrace with stunning sea and Peñón de Ifach views.
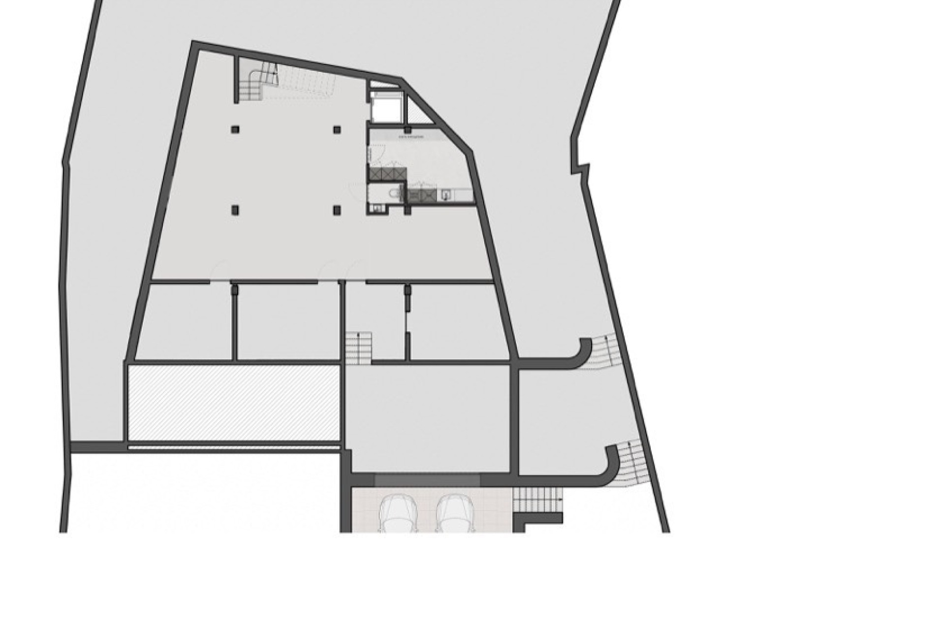
The basement includes a wine cellar, laundry room and several rooms that can be converted into a gym, cinema or games room. The property also offers a garage for two cars, additional driveway parking, lift access to all floors and air conditioning throughout.
For more information or to arrange a viewing, please do not hesitate to contact us.
BoCasa is your personal real estate agent at the Costa Blanca. The center of our attention is on the area between Denia and Calpe and inland upto the Jalon valley with a focus on the towns of Moraira, Javea, Benissa and Benitachell. We help you from start to finish with the purchase or sale of your property in Spain. Based on your preferences, we select suitable homes, view them together with you, negotiate on your behalf and guide you in engaging professional partners such as lawyers, mortgage advisers, notaries, etc. We are also there for you after the purchase for arranging all kinds of practical matters that you encounter but also, for example, for renovations and the furnishing of your house and/or garden. Feel free to contact us, without any obligation.