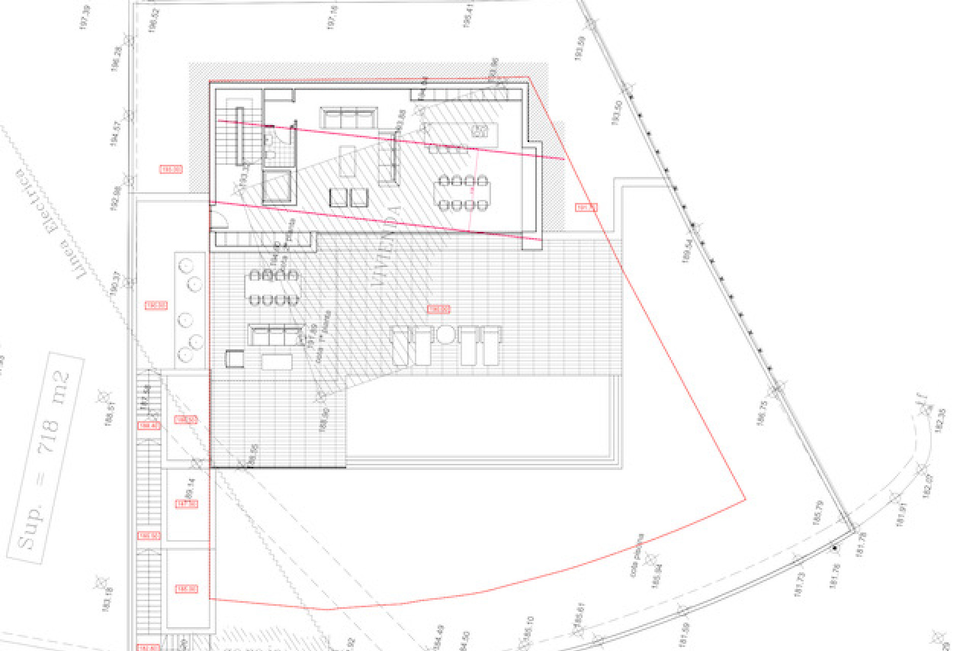
Proyecto de lujo con vistas panorámicas al mar y a la montaña a construir en Montemar, Benissa.
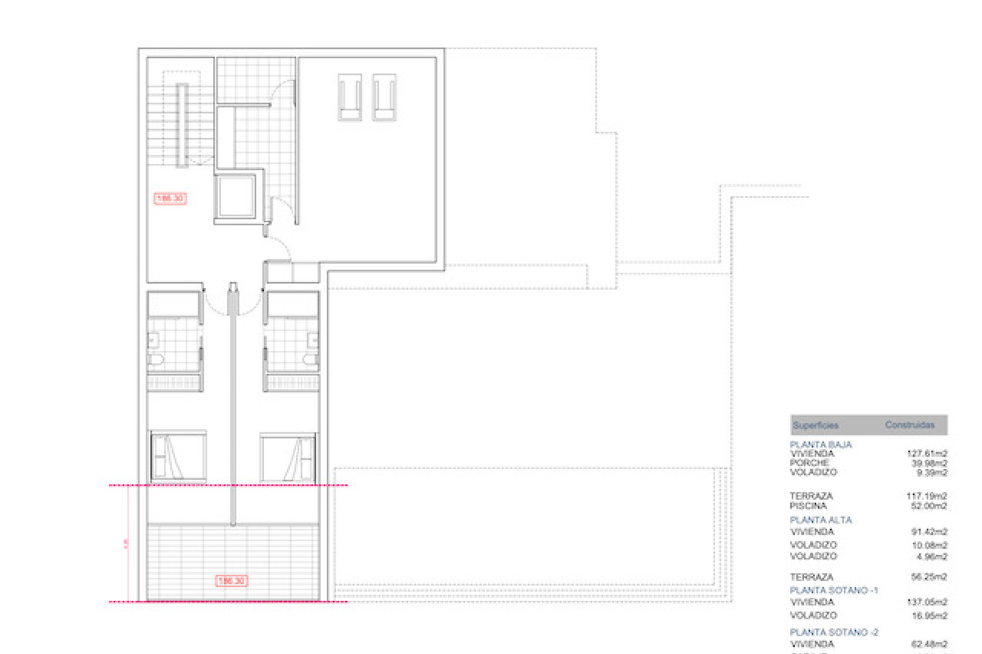
Esta villa, con acabados de hormigón visto, tiene 4 plantas que están conectadas con un ascensor y una escalera interna. La primera planta cuenta con un amplio salón-comedor-cocina de planta abierta y un aseo. La cocina está totalmente equipada y tiene una isla para cocinar.
Hay impresionantes puertas correderas a la altura del techo que dan acceso directo a una gran terraza y a la piscina. La planta superior contiene dos dormitorios con baños en suite y una terraza.
La propiedad tiene 2 sótanos. El sótano 1 tiene dos dormitorios más, cada uno con su propio baño y un lavadero. El sótano 2 alberga el gimnasio, la bodega y un garaje con capacidad para 4 coches.
La casa tiene aire acondicionado (por conductos) y calefacción central con bomba de calor. Dispone de puerta de entrada automática con entrada peatonal independiente e interfono. En el mismo nivel que la casa principal se encuentra la piscina.
Incluye carpintería exterior con persianas automáticas y mosquiteras en dormitorios, armarios empotrados con módulos e instalación de alarma básica.
CARACTERÍSTICAS PRINCIPALES:
* Garaje para 4 coches* Vistas al Peñón de Ifach y al mar panorámico* Aire Acondicionado (con conductos)* Calefacción central con bomba de calor* Puertas Eléctricas* Alarma Básica* Persianas Eléctricas* Mosquiteras * Ventanas con doble acristalamiento* Bodega* Gimnasio* Almacenamiento
BoCasa es su agente inmobiliario personal en la Costa Blanca. Nuestra zona de trabajo se centra en la zona entre Denia a Calpe y hacia el interior hasta el valle de Jalon con un enfoque en las ciudades de Moraira, Javea, Benissa y Benitachell. Le ayudamos desde el principio hasta el final con la compra o venta de su propiedad en España. Según sus preferencias, seleccionamos viviendas adecuadas, las visitamos junto con usted, negociamos en su nombre y le guiamos en la contratación de profesionales como abogados, asesores hipotecarios, notarios, etc. También estamos a su disposición después de la compra para arreglar todo tipo de asuntos prácticos que se le presenten, pero también, por ejemplo, para las reformas y el amueblamiento de su casa y/o jardín. No dude en ponerse en contacto con nosotros, sin ningún compromiso.