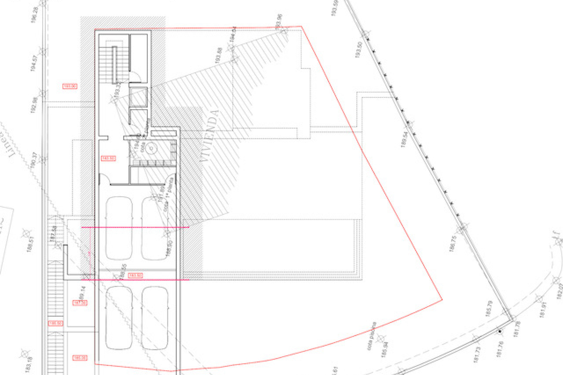
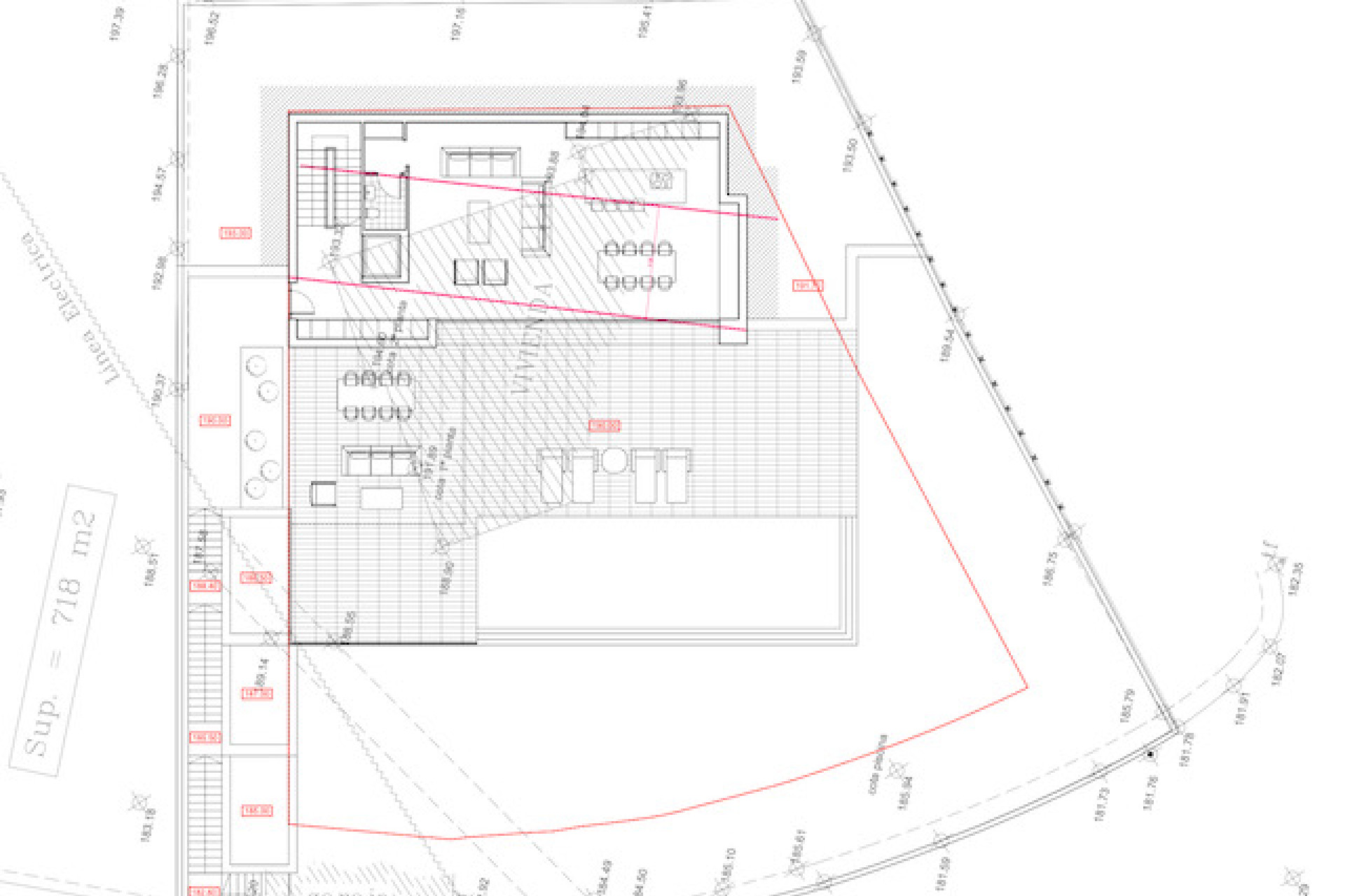
Projet de luxe avec vue panoramique sur la mer et les montagnes à construire à Montemar, Benissa.
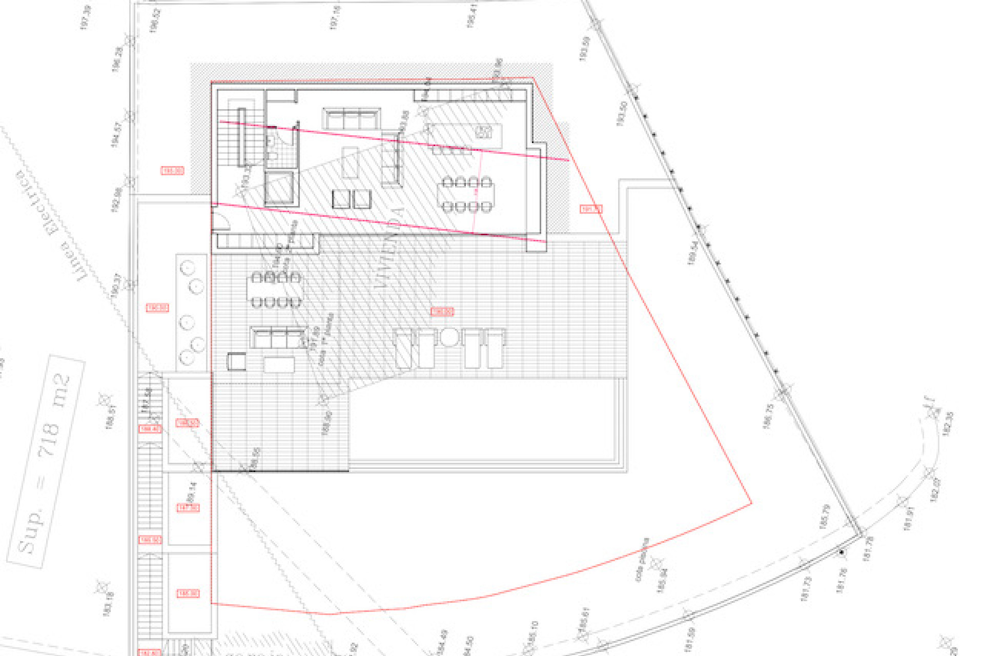
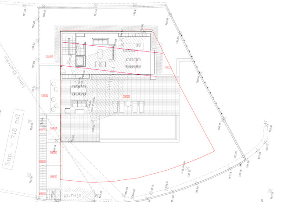
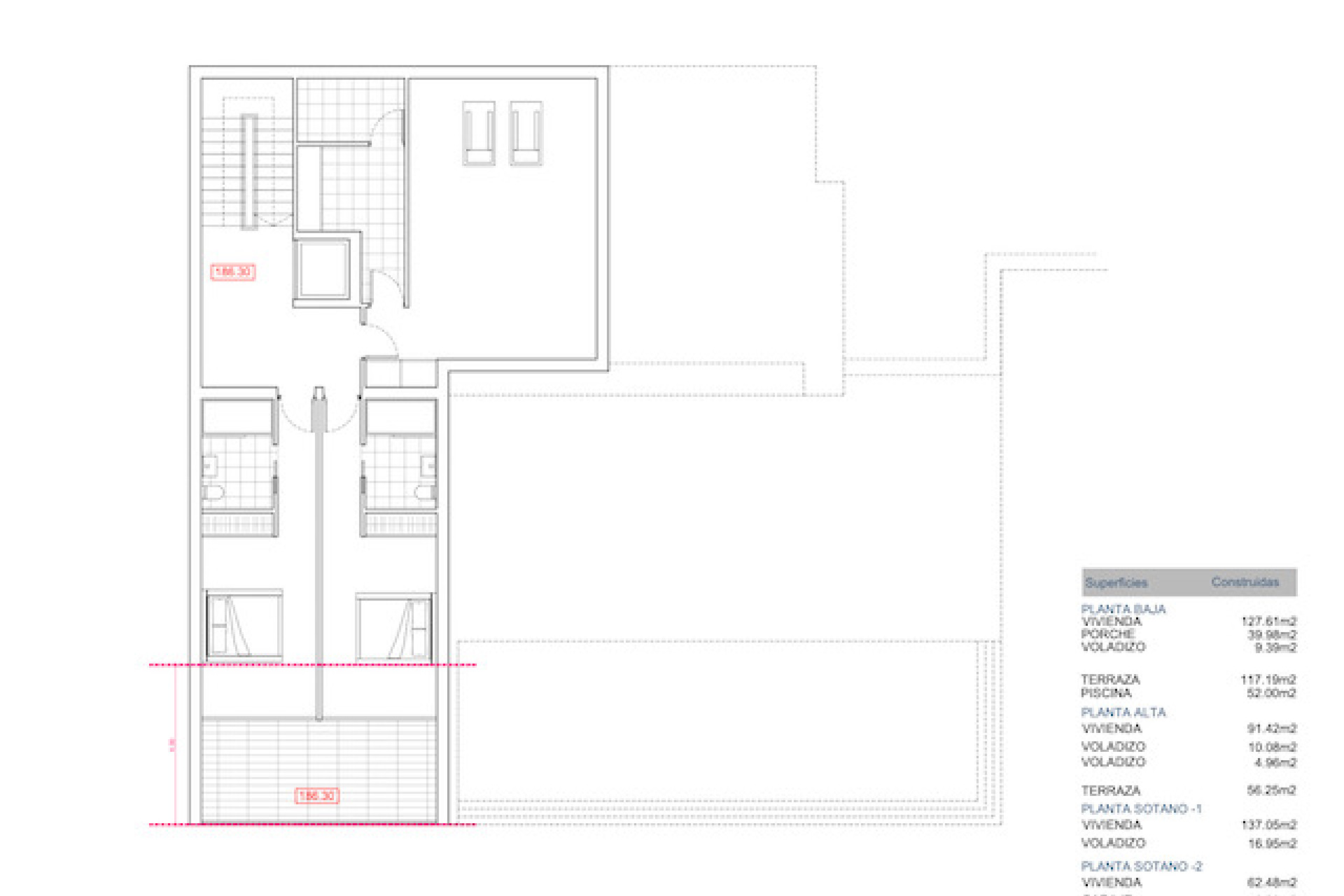
Cette villa, avec des finitions en béton apparent, a 4 étages qui sont reliés par un ascenseur et un escalier interne. Le premier étage est composé d'un grand salon-salle à manger-cuisine et d'une toilette. La cuisine est entièrement équipée et dispose d'un îlot pour cuisiner.
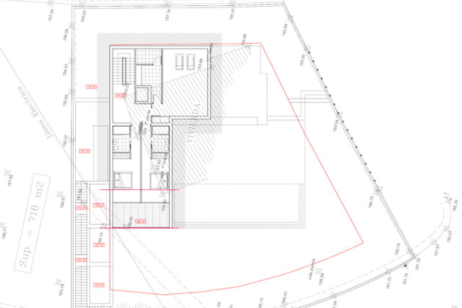
D'impressionnantes portes coulissantes à hauteur de plafond donnent un accès direct à une grande terrasse et à la piscine. L'étage supérieur contient deux chambres à coucher avec salles de bains attenantes et une terrasse.
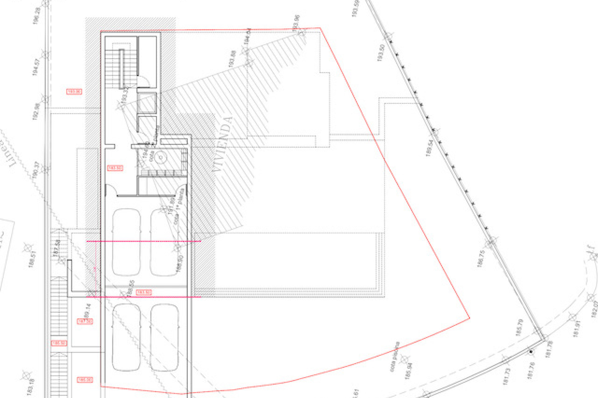
La propriété a 2 sous-sols. Le sous-sol 1 comprend deux autres chambres, chacune avec sa propre salle de bain et une buanderie. Le sous-sol 2 abrite la salle de sport, la cave à vin et un garage pouvant accueillir 4 voitures.
La maison est équipée de la climatisation (avec gaines) et du chauffage central avec pompe à chaleur. Elle dispose d'un portail d'entrée automatique avec entrée piétonne séparée et interphone. La piscine se trouve au même niveau que la maison principale.
Elle comprend des menuiseries extérieures avec des stores automatiques et des moustiquaires dans les chambres, des placards aménagés avec des modules et l'installation d'une alarme de base.
CARACTÉRISTIQUES PRINCIPALES :
Garage pour 4 voituresVues sur le Peñon de Ifach et la mer panoramiqueAir conditionné (avec gaines)Chauffage central avec pompe à chaleurPortail électriqueAlarme de baseStores électriquesMoustiquaires Fenêtres à double vitrageBodegaGymnaseRangement
BoCasa is uw persoonlijke Nederlandstalige makelaar aan de Costa Blanca. Onze aandacht richt zich op het gebied tussen Denia en Calpe en landinwaarts tot aan de Jalon vallei met een focus op de plaatsen Moraira, Javea, Benissa en Benitachell. Wij helpen u van A to Z bij de aankoop of verkoop van uw woning in Spanje. Aan de hand van uw wensen selecteren wij geschikte woningen, bezichtigen deze samen met u, voeren de onderhandelingen in samenspraak en begeleiden u bij het inschakelen van professionele partners, zoals advocaten, hypotheekadviseurs, notarissen etc. Ook na de aankoop staan wij voor u klaarvoor het regelen van allerlei praktische zaken waar u tegenaan loopt maar bijvoorbeeld ook voor verbouwingen en de inrichting van uw huis en/of tuin. Neem gerust, geheel vrijblijvend, contact met ons op.