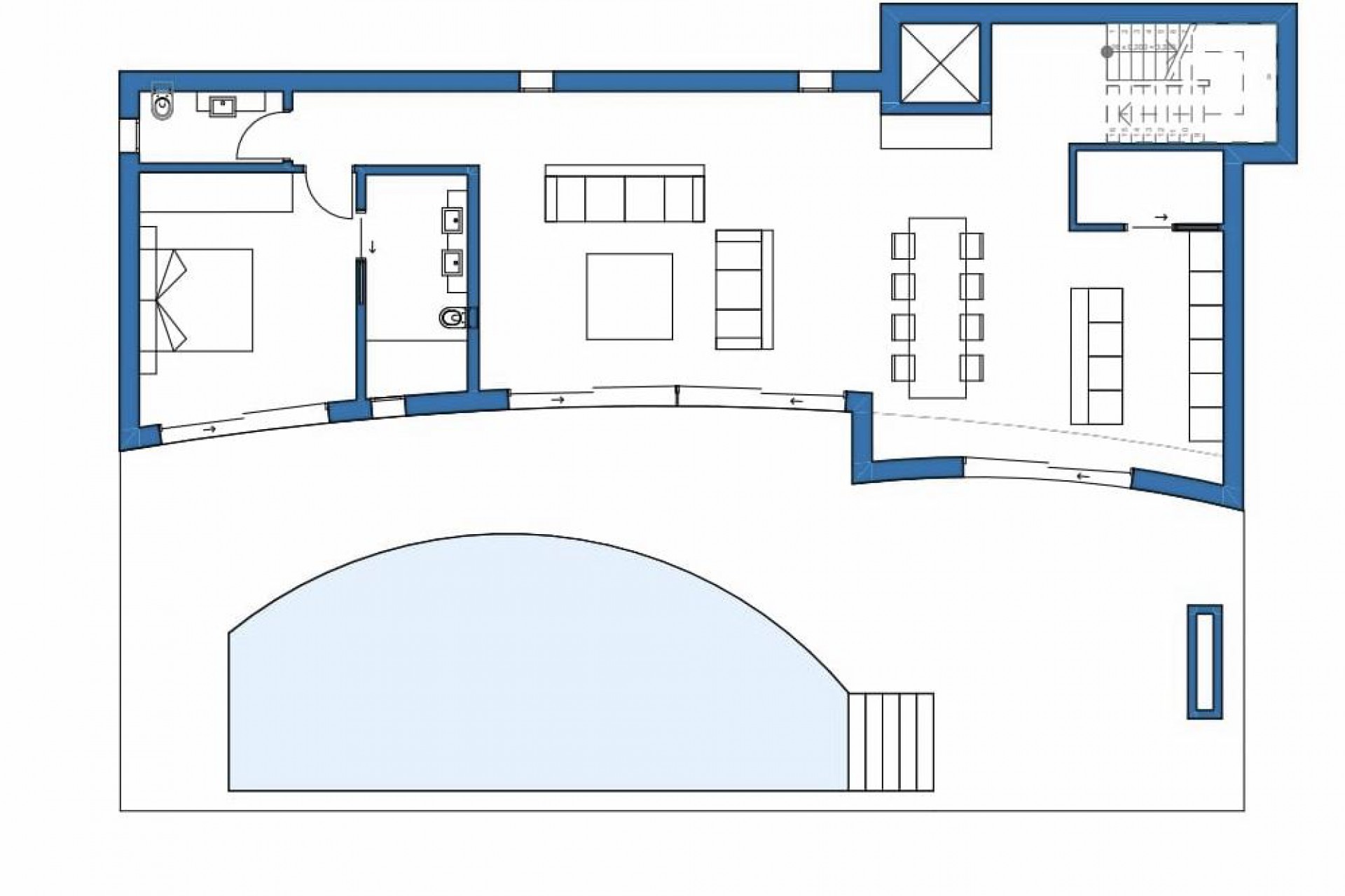
Stijlvolle moderne villa te koop in Empedrola CalpeGelegen op een verhoogd perceel met een fantastisch open uitzicht op de zee en de Peñon de Ifach, zal deze stijlvolle moderne designvilla worden gebouwd volgens de hoogste kwaliteiten en wordt volledig uitgerust te koop aangeboden.Het huis is modern van stijl en ontwerp op twee niveaus, gelegen aan een rustige doodlopende weg in de urbanisatie Empedrola in Calpe.De stranden en de stad Calpe bevinden zich op 10 minuten van de accommodatie, de kust van Benissa op 15 minuten en de stad Moraira op 20 minuten rijden.Deze moderne villa is gelegen op een perceel grond van 1.005 vierkante meter, het perceel is volledig omheind en professioneel aangelegd.De verdeling is verdeeld over twee verdiepingen, met een totale bebouwde oppervlakte van 300,00 m2. Buiten een groot overloopzwembad, veel zonneterrassen en overdekte terrassen om van het fantastische uitzicht te genieten.De woning heeft 4 slaapkamers allen met en-suite badkamers, toegang vanaf de parkeerplaats, toilet, moderne keuken en aangrenzende bijkeuken/wasruimte, en een lichte en ruime open woonkamer met directe toegang tot het terras bij het zwembad.De badkamers zijn luxueuze ruimtes, uitgerust met meubilair en bevestigingsmateriaal van hoge kwaliteit.De tuinen zijn volledig omheind waardoor het privacy heeft. Het pand heeft ook beveiligingscamera's rond de omtrek van het huis vanaf de ingangen. Om maximale veiligheid te garanderen, is het huis uitgerust met een alarm dat vooraf is aangesloten op een 24-uurs bewakingscentrum. Een schuifdeur voor voertuigen met een openingssysteem en een andere voor voetgangers verbonden door een video-intercom garanderen totale controle.Kenmerken van deze moderne woning:Personenlift en trappenhuis die alle verdiepingen met elkaar verbinden.Vloerverwarming en airconditioning middels leidingen met energiezuinige warmtepomp.Hoogwaardig aluminium buitenschrijnwerk met gemotoriseerde rolluiken in de slaapkamers.Volledig ingerichte moderne badkamers.Keuken uit de Premium-serie uitgerust met geborsteld porseleinen aanrechtblad en Siemens inbouwapparatuur.Bijkeuken met Siemens wasmachine en droger.Parkeren is toegankelijk via automatische poorten.Alarmsysteem met camera's.Professioneel aangelegde tuinen.Dit project wordt gebouwd door een van Calpe's toonaangevende constructeurs met meer dan 40 jaar ervaring, met toewijding en garanties om een hoogwaardig product te leveren met een garantie van 10 jaar. Andere afgewerkte woningen en panden in aanbouw zijn te bezichtigen om kwaliteiten en afwerkingen te bekijken.
BoCasa is uw persoonlijke Nederlandstalige makelaar aan de Costa Blanca. Onze aandacht richt zich op het gebied tussen Denia en Calpe en landinwaarts tot aan de Jalon vallei met een focus op de plaatsen Moraira, Javea, Benissa en Benitachell. Wij helpen u van A to Z bij de aankoop of verkoop van uw woning in Spanje. Aan de hand van uw wensen selecteren wij geschikte woningen, bezichtigen deze samen met u, voeren de onderhandelingen in samenspraak en begeleiden u bij het inschakelen van professionele partners, zoals advocaten, hypotheekadviseurs, notarissen etc. Ook na de aankoop staan wij voor u klaarvoor het regelen van allerlei praktische zaken waar u tegenaan loopt maar bijvoorbeeld ook voor verbouwingen en de inrichting van uw huis en/of tuin. Neem gerust, geheel vrijblijvend, contact met ons op.