Een uniek 1ste lijn appartement, net buiten het centrum van Moraira en met prachtig uitzicht op zee.
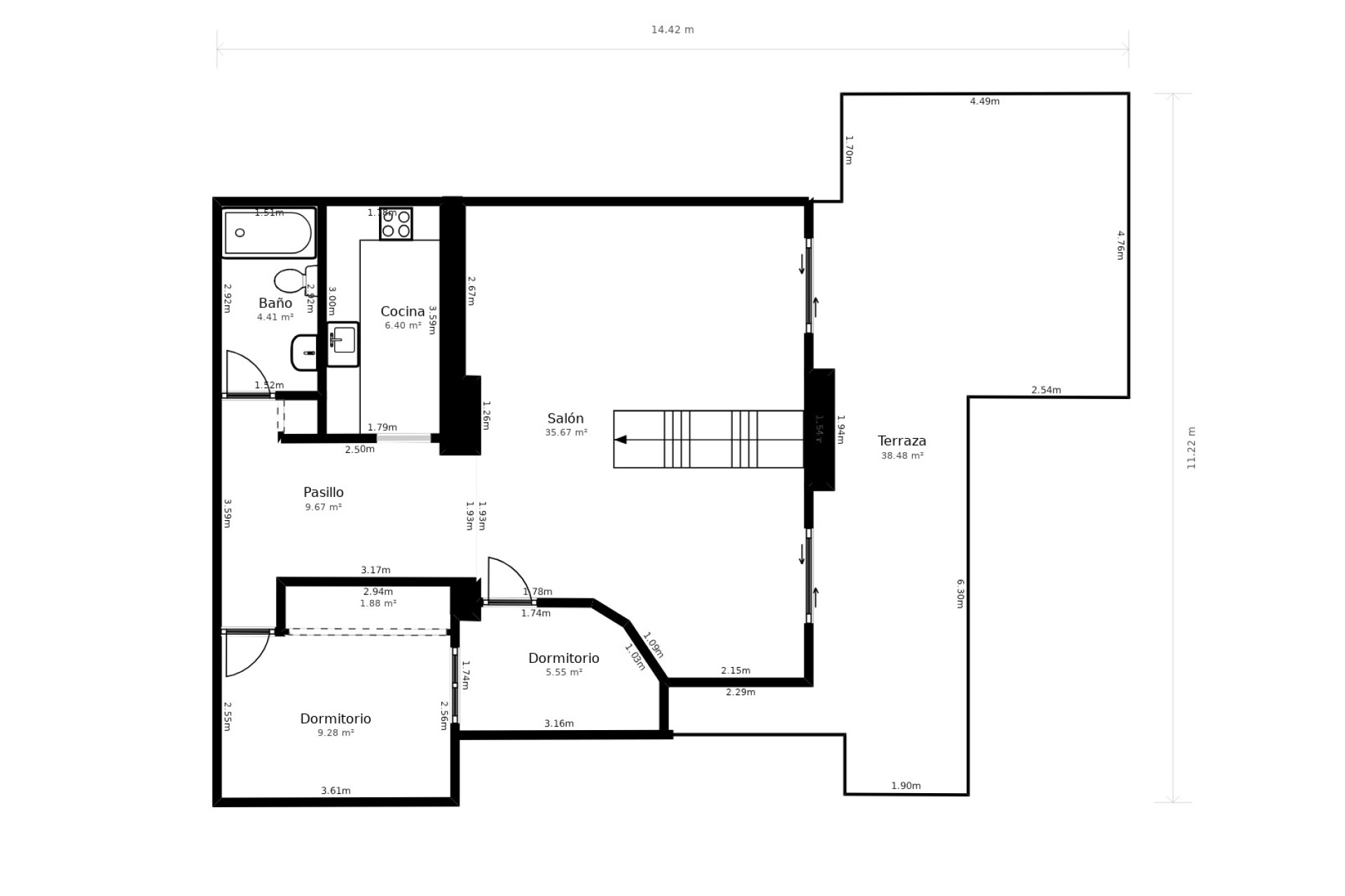
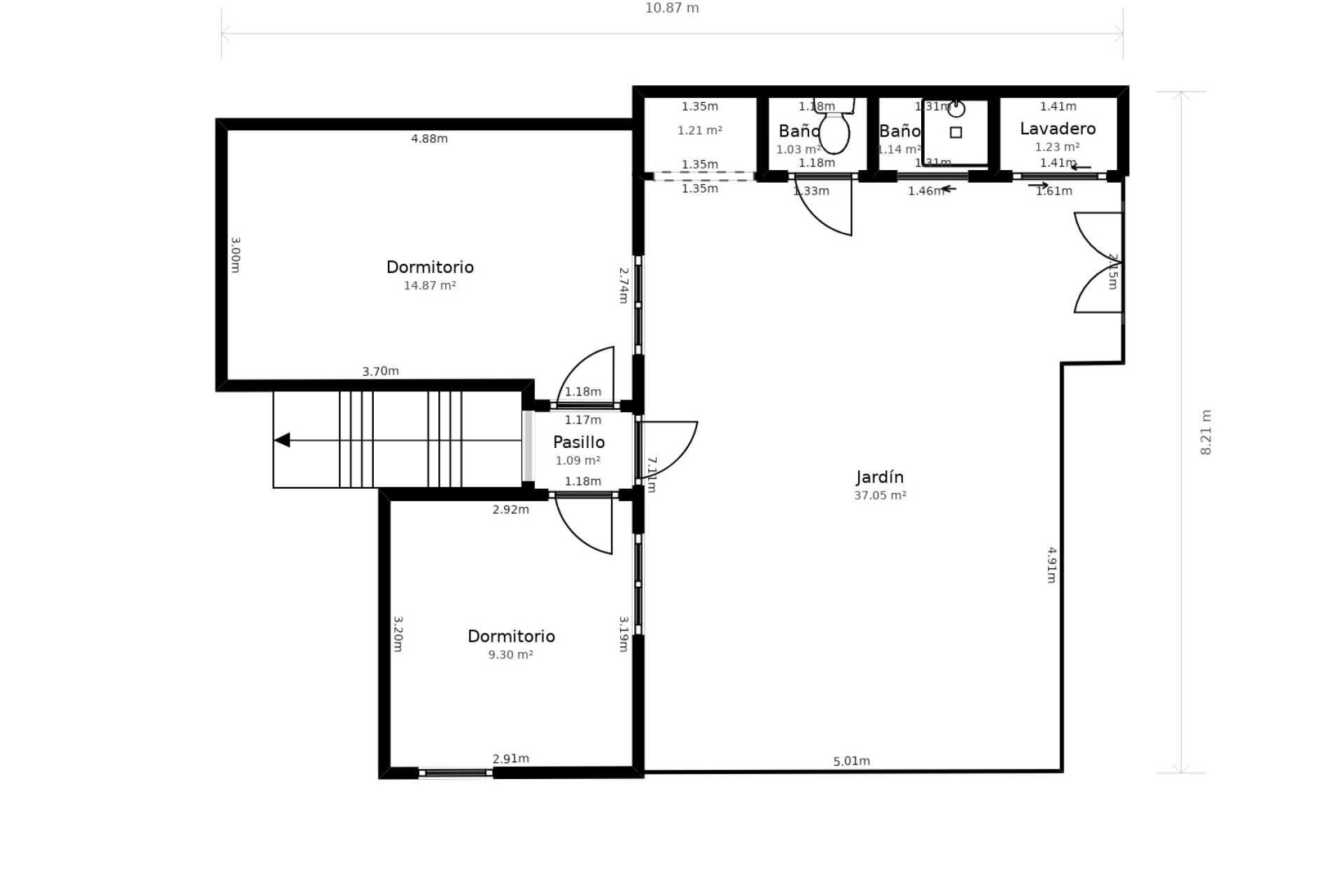
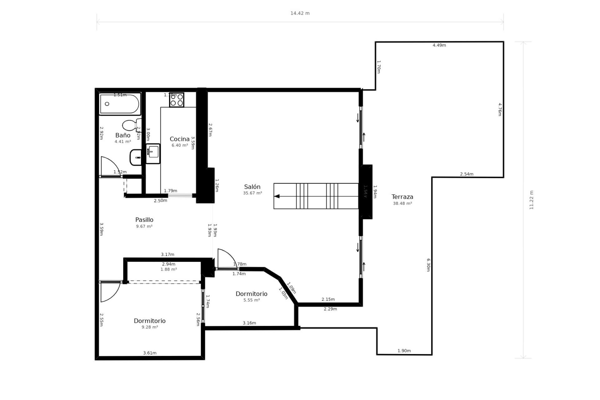
Heb je altijd gedroomd van een appartement met een ruim terras en panoramisch uitzicht op de zee en de Peñon de Ifach, dan is dit je kans! Het appartement bestaat uit twee verdiepingen die met elkaar verbonden zijn via een binnentrap, die je kunt betreden vanaf straatniveau of direct via de hoofdverdieping. De gemeenschappelijke buitentrap leidt naar de voordeur om het ruime privéterras te betreden en je wordt meteen overweldigd door het turquoise water van de Middellandse Zee en het indrukwekkende uitzicht recht voor je! Hier kun je de hele dag van de zon en de voorbij varende boten genieten. Grote ramen openen naar de lichtrijke woon-eetkamer in traditionele Ibiza-stijl met terracotta vloeren. Verder op dezelfde verdieping vindt je een eerste kleinere kamer of kantoor, de aparte keuken, een badkamer met bad en een tweepersoonsslaapkamer met een ingebouwde kledingkast.Op de onderste verdieping vind je nog twee slaapkamers en toegang tot een patio met veel potentieel. Hier kun je je eigen privé-oase creëren met planten etc. of het ombouwen tot een parkeerplaats. Tot slot is er ook nog een apart toilet, een buitendouche en een wasruimte met boiler. Het is ook mogelijk om het benedengedeelte te gebruiken voor commerciële doeleinden.Dit appartement ligt op een unieke locatie en je zou er na een verbouwing een juweeltje van kunnen maken.
BELANGRIJKSTE KENMERKEN:
Appartement op de eerste lijn aan zee, aan de rand van het centrum van Moraira en het strandZuid oriëntatieBeneden verdieping ook te gebruiken voor commerciële doeleindenUnieke locatie maar heeft een volledige renovatie nodig
Maak nu een afspraak om dit appartement met bijzondere locatie te bekijken!
BoCasa is uw persoonlijke Nederlandstalige makelaar aan de Costa Blanca. Onze aandacht richt zich op het gebied tussen Denia en Calpe en landinwaarts tot aan de Jalon vallei met een focus op de plaatsen Moraira, Javea, Benissa en Benitachell. Wij helpen u van A to Z bij de aankoop of verkoop van uw woning in Spanje. Aan de hand van uw wensen selecteren wij geschikte woningen, bezichtigen deze samen met u, voeren de onderhandelingen in samenspraak en begeleiden u bij het inschakelen van professionele partners, zoals advocaten, hypotheekadviseurs, notarissen etc. Ook na de aankoop staan wij voor u klaarvoor het regelen van allerlei praktische zaken waar u tegenaan loopt maar bijvoorbeeld ook voor verbouwingen en de inrichting van uw huis en/of tuin. Neem gerust, geheel vrijblijvend, contact met ons op.