Ontdek deze moderne villa te koop in Moraira, gelegen op een ideale locatie met een fraai uitzicht over de vallei, de Zee en de baai van El Portet. De woning combineert een modern design met optimaal wooncomfort. Ideaal voor wie op zoek is naar een ruime woning aan de Costa Blanca. De woning beschikt over vier ruime slaapkamers en vier moderne badkamers, verdeeld over twee verdiepingen.
Op de bovenverdieping bevindt zich een royale master slaapkamer met en-suite badkamer en directe toegang tot een privé terras met prachtig uitzicht over zee en de groene omgeving. Daarnaast zijn er op deze verdieping nog twee tweepersoonsslaapkamers die een ruime badkamer delen, waarvan één eveneens toegang heeft tot een eigen terras. Vanuit alle slaapkamers geniet je van een schitterend zee- en vallei-uitzicht.
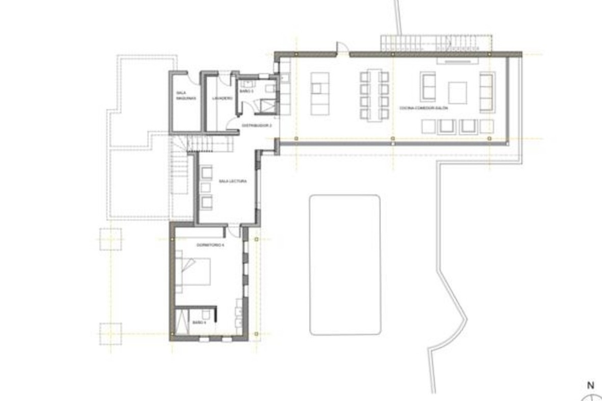
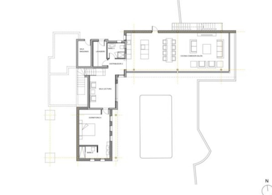
Via een interne trap bereik je de begane grond, waar zich nog een ruime slaapkamer met en-suite badkamer bevindt. De lichte woon- en eetkamer vormt het hart van de woning, met grote raampartijen die het binnen- en buitenleven met elkaar verbinden. De moderne open keuken met kookeiland is praktisch ingericht en volledig uitgerust. Op deze verdieping vind je tevens een aparte wasruimte, een extra badkamer en een multifunctionele ruimte die kan worden gebruikt ontspanningsruimte, kantoor,..
Een ruim zonneterras met privézwembad biedt de perfecte plek om te ontspannen en te genieten van het heerlijke klimaat aan de Costa Blanca. Het zwembad beschikt over verwarming en een buitendouche, zodat je het hele jaar door comfortabel kunt zwemmen.Er is ook een gezellige barbecuehoek, ideaal voor zomerse diners met uitzicht op zee. De tuin is onderhoudsvriendelijk aangelegd, wat zorgt voor een strak en verzorgd geheel. Daarnaast biedt het perceel voldoende parkeerruimte en een afsluitbare carport.
Neem vandaag nog contact op met ons op voor meer informatie of om een bezichtiging te plannen.
BoCasa is uw persoonlijke Nederlandstalige makelaar aan de Costa Blanca. Onze aandacht richt zich op het gebied tussen Denia en Calpe en landinwaarts tot aan de Jalon vallei met een focus op de plaatsen Moraira, Javea, Benissa en Benitachell. Wij helpen u van A to Z bij de aankoop of verkoop van uw woning in Spanje. Aan de hand van uw wensen selecteren wij geschikte woningen, bezichtigen deze samen met u, voeren de onderhandelingen in samenspraak en begeleiden u bij het inschakelen van professionele partners, zoals advocaten, hypotheekadviseurs, notarissen etc. Ook na de aankoop staan wij voor u klaarvoor het regelen van allerlei praktische zaken waar u tegenaan loopt maar bijvoorbeeld ook voor verbouwingen en de inrichting van uw huis en/of tuin. Neem gerust, geheel vrijblijvend, contact met ons op.