Elements EcoResidences ontstaat in Llíber, midden in de Vall de Pop, als een plek waar natuur en architectuur samensmelten tot een unieke levensstijl. Hier, omgeven door wijngaarden, bergen en charmante dorpen, vind je een project dat de mediterrane traditie herinterpreteert met een eigentijds en duurzaam ontwerp, zodat iedere bewoner in harmonie met het landschap kan leven.
De infrastructuur is van meet af aan ontworpen met de meest actuele en verantwoorde technieken, waarbij aan elk detail is gedacht. Daarnaast nodigt het woonproject uit tot gedeelde ervaringen: een clubhuis met restaurant, spa en fitness; gemeenschappelijke moestuinen; sportzones en groene ruimten die de band met de natuur en de gemeenschap versterken. Een plek waar het leven in alle rust en met de authenticiteit van de noordelijke Costa Blanca wordt geproefd.
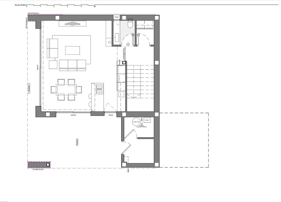
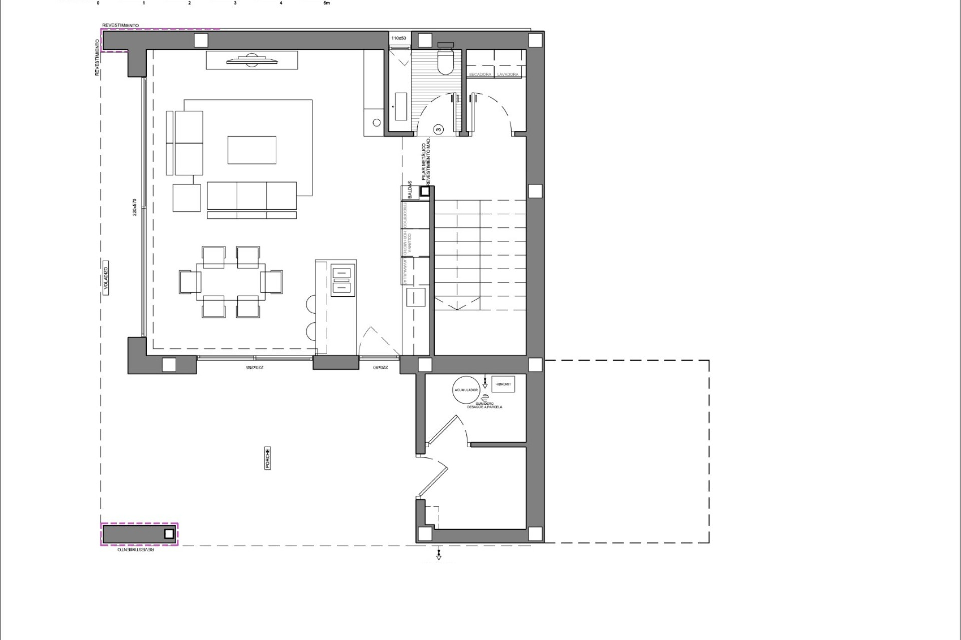
In deze context ontstaat Airen Collection: villa’s die zijn ontworpen om op te gaan in de omgeving en woningen met een ziel te bieden. Het model Airen B is de perfecte keuze voor wie momenten van samenzijn en rust duidelijk wil scheiden. De begane grond herbergt een ruime living-eetkamer met open keuken die doorloopt naar het terras en het privézwembad.
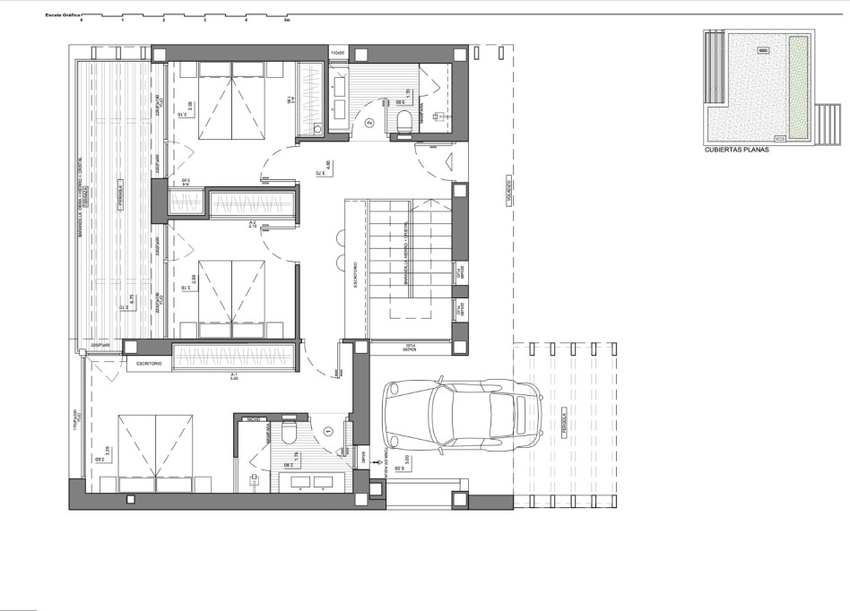
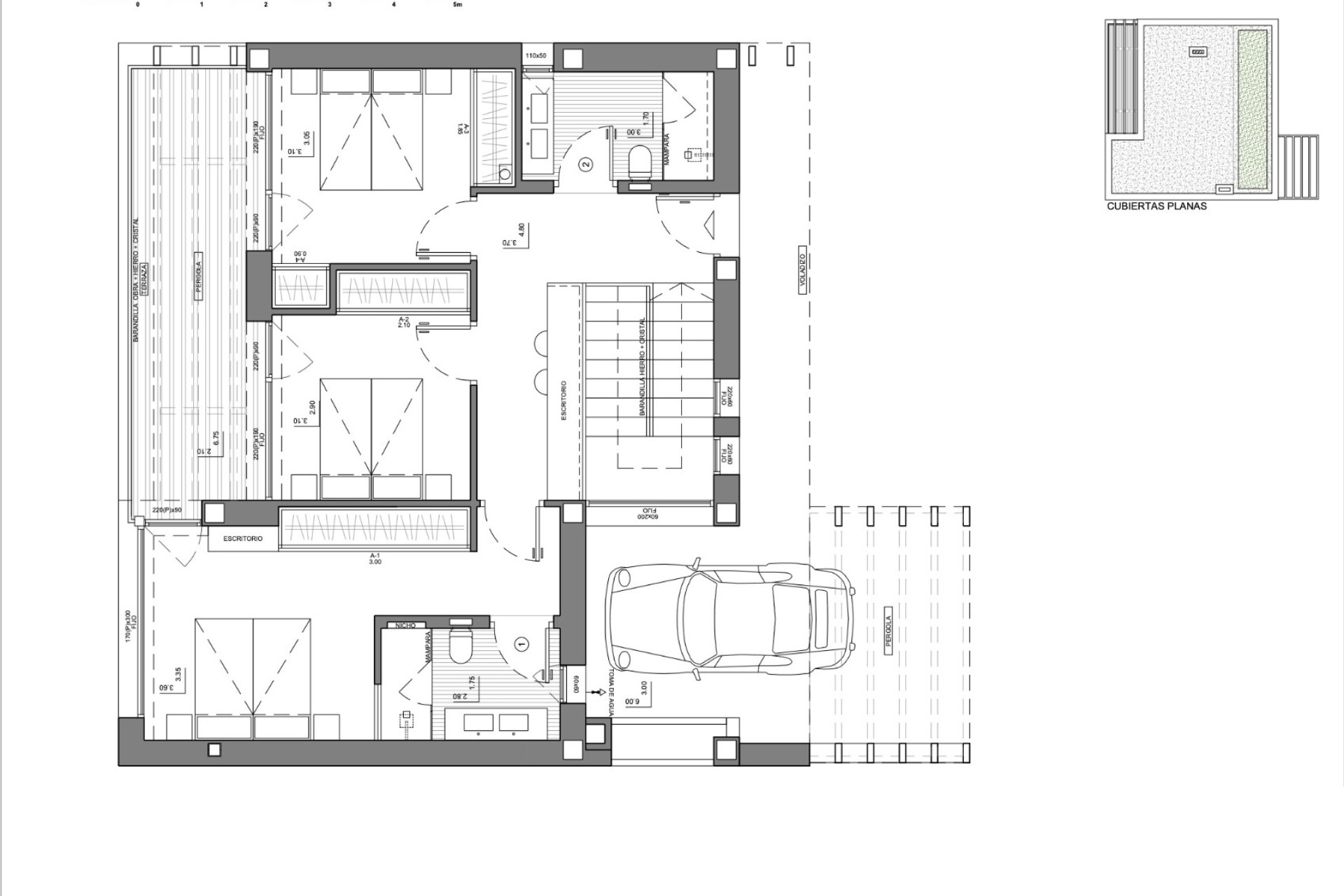
De bovenverdieping is het domein van de privacy: drie slaapkamers met privéterrassen die het uitzicht op de vallei en de Sierra del Castell d’Aixa omlijsten. De hoofdslaapkamer, met en-suite badkamer en inloopkast, wordt een plek om de dag in kalmte te beginnen en te eindigen. Dit alles gaat vergezeld van voorzieningen die welzijn en duurzaamheid waarborgen: aerothermie, vloerverwarming, fotovoltaïsche panelen, domotica en een laadpunt voor elektrische auto’s. Airen B is niet zomaar een villa; het is een uitnodiging om een nieuwe manier van leven te ontdekken, in evenwicht met de natuur, het ontwerp en jezelf.
BoCasa is uw persoonlijke Nederlandstalige makelaar aan de Costa Blanca. Onze aandacht richt zich op het gebied tussen Denia en Calpe en landinwaarts tot aan de Jalon vallei met een focus op de plaatsen Moraira, Javea, Benissa en Benitachell. Wij helpen u van A to Z bij de aankoop of verkoop van uw woning in Spanje. Aan de hand van uw wensen selecteren wij geschikte woningen, bezichtigen deze samen met u, voeren de onderhandelingen in samenspraak en begeleiden u bij het inschakelen van professionele partners, zoals advocaten, hypotheekadviseurs, notarissen etc. Ook na de aankoop staan wij voor u klaarvoor het regelen van allerlei praktische zaken waar u tegenaan loopt maar bijvoorbeeld ook voor verbouwingen en de inrichting van uw huis en/of tuin. Neem gerust, geheel vrijblijvend, contact met ons op.