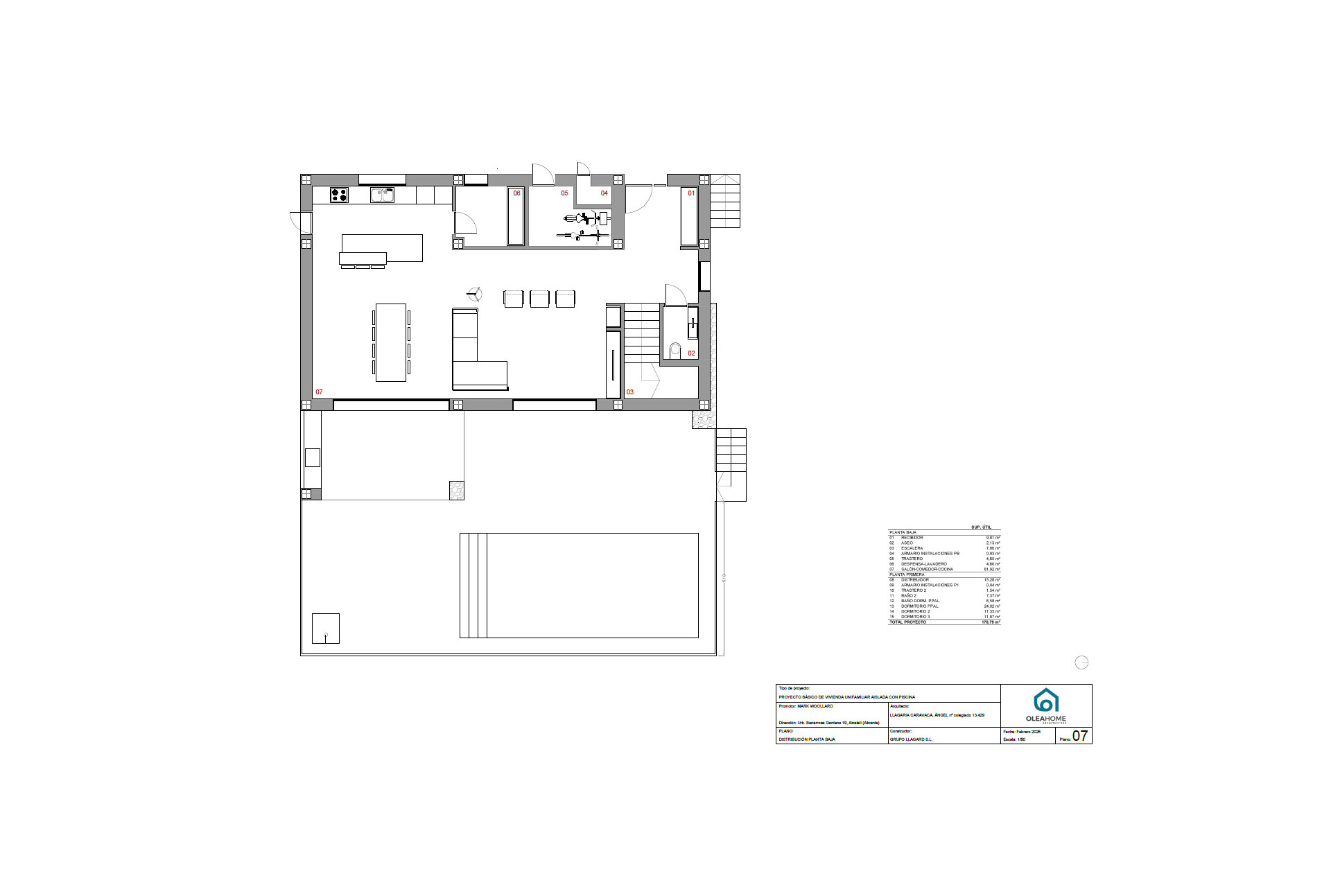
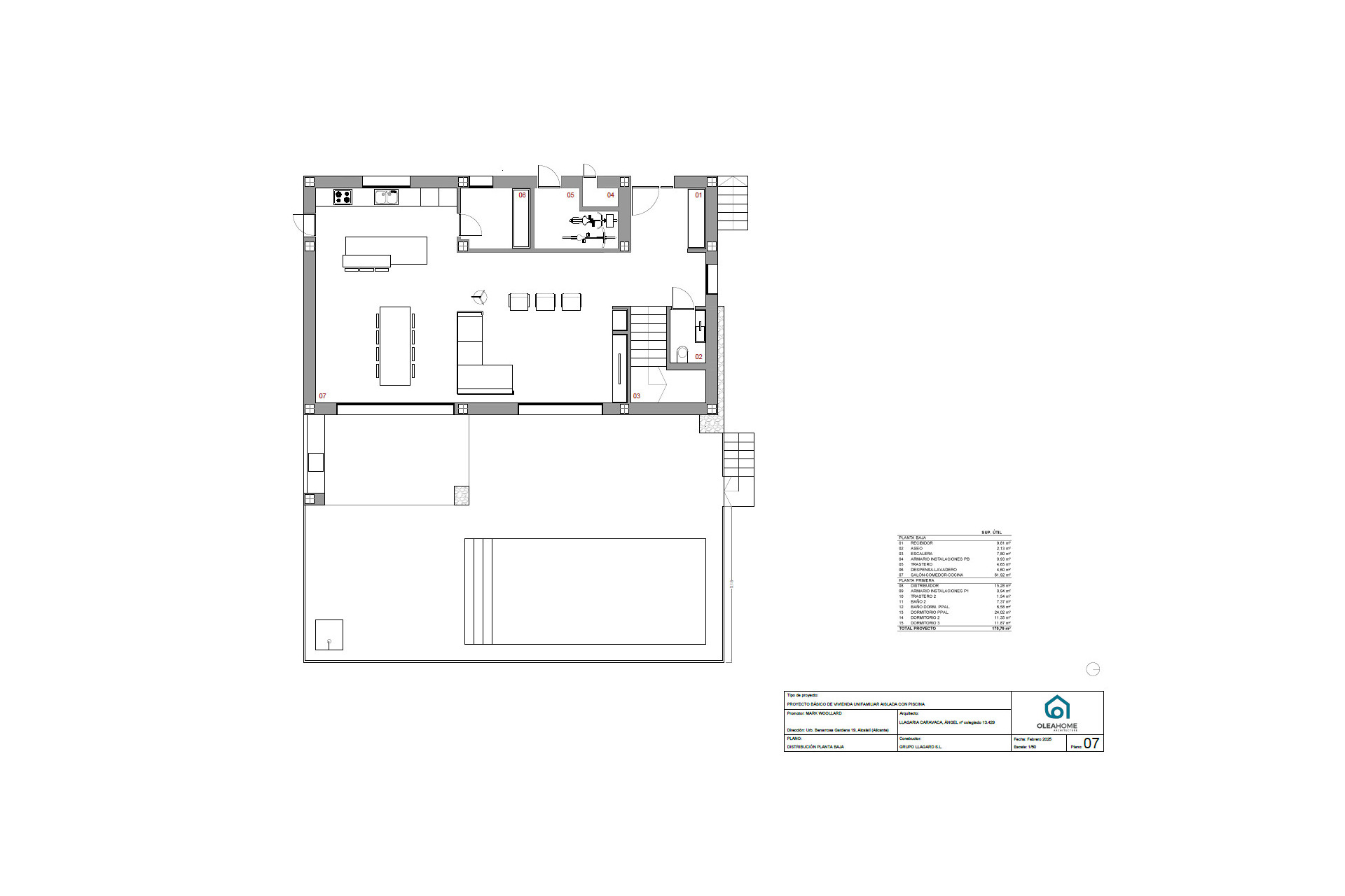
Ontdek je nieuwe huis in AlcalalíGelegen in het idyllische dorp Alcalalí, rijst deze nieuwbouwwoning op als een oase van moderniteit en comfort in de provincie Alicante. Met een gebouwde oppervlakte van 211 m² en een royaal grondoppervlak van 1.021 m² is deze woning het perfecte decor voor een leven vol licht en open ruimtes. Deze woning beschikt over een bouwvergunning. Ontwerp en IndelingDeze villa is verdeeld over twee verdiepingen. Op de eerste verdieping of hoofdverdieping vindt u een prachtige woonkamer met eetkamer en een keuken met eiland, een ideale plek om momenten te delen met vrienden en familie, een voorraadkamer, een berging en een toiletruimte voor gasten. De bovenverdieping heeft drie gezellige slaapkamers die de privacy en rust bieden die je verdient, vergezeld van twee elegant ontworpen badkamers die functionaliteit en stijl combineren, waarvan één ensuite. De indeling is ontworpen om optimaal gebruik te maken van de ruimte, wat een natuurlijke flow tussen de verschillende delen van het huis mogelijk maakt. Een Ruimte om van te GenietenDe villa biedt een tuinruimte die uitnodigt om te genieten van de frisse lucht en de natuur in volledige privacy, en twee terrassen om het mediterrane klimaat het hele jaar door te genieten. Buitenshuis en BinnenhuiskenmerkenDe woning is uitgerust met een zwembad van 8 x 4, perfect om te verfrissen tijdens de warme zomerdagen. De buitenruimtes omvatten een open terras en een overdekt terras. De villa, volledig omheind, garandeert veiligheid en rust, terwijl de effectieve verbinding met de nabijgelegen hoofdwegen de toegang tot lokale diensten en attracties vergemakkelijkt. Extra ComfortVoorzien van airconditioning voor zowel koeling als verwarming via kanalen, biedt elke hoek van deze villa een warme en comfortabele sfeer in elk seizoen. De dubbelglasramen, automatische jaloezieën in de slaapkamers en de toegang tot parkeergelegenheid en berging voegen een extra laag van gemak en comfort toe aan je dagelijks leven. Dit toevluchtsoord is niet alleen een plek om te wonen, maar een levensstijl die de sereniteit en luxe omarmt die Alcalalí biedt. Met zijn hedendaagse architectuur en uitzonderlijke kenmerken is deze villa een uitnodiging om elke dag te genieten in een omgeving waar de tijd lijkt stil te staan.
BoCasa is uw persoonlijke Nederlandstalige makelaar aan de Costa Blanca. Onze aandacht richt zich op het gebied tussen Denia en Calpe en landinwaarts tot aan de Jalon vallei met een focus op de plaatsen Moraira, Javea, Benissa en Benitachell. Wij helpen u van A to Z bij de aankoop of verkoop van uw woning in Spanje. Aan de hand van uw wensen selecteren wij geschikte woningen, bezichtigen deze samen met u, voeren de onderhandelingen in samenspraak en begeleiden u bij het inschakelen van professionele partners, zoals advocaten, hypotheekadviseurs, notarissen etc. Ook na de aankoop staan wij voor u klaarvoor het regelen van allerlei praktische zaken waar u tegenaan loopt maar bijvoorbeeld ook voor verbouwingen en de inrichting van uw huis en/of tuin. Neem gerust, geheel vrijblijvend, contact met ons op.